Address: 101 - 75 HUXLEY STREET, London South (South E) FOR SALE Postal Code: N6J4W7 Style: Type: Single Family Apartment Maint/Condo. Fee: 517.85 Fee Includes: Monthly Common Area Maintenance, Parking, Water, Insurance Management: Lionheart Property Management Bedrooms: 2 Bathrooms: 1 Bedrooms Aboveground: 2 Parking: No Garage Garage: No Garage Lot Size: x
About 101 - 75 Huxley Street
Welcome to this lovely main-floor, two bedroom corner condo offering exceptional natural light and a welcoming layout. This home is completely carpet-free featuring brand new vinyl plank flooring throughout the living room and both bedrooms. Enjoy plenty of natural light and the convenience of a walk-out to your private balcony. Conveniently located close to shopping, transit and everyday amenities, this unit is ideal for first-time homebuyers, down-sizers, or investors looking for a low maintenance property in a great location. (id:56071). Get more information on 101 - 75 Huxley Street
Property Features
Appliances: Water Heater, Dishwasher, Dryer, Stove, Washer, Refrigerator Features: Balcony, Carpet Free Landscape: Landscaped Rental Equipment: Directions: Cross Streets: Commissioners Rd. ** Directions: North onto Huxley St. off of Commissioners Rd. Interior Size: 800 - 899 sqft Community Features: Pets Allowed With Restrictions Amenities: Separate Heating Controls Lot: Exterior Finish: Brick, Concrete Flooring: Tile Water: , Heating / Cooling: Electric / Wall unit Age: Basement: None
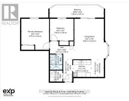
Rooms & Sizes
Foyer Main level 1.21 m x 2.97 m
Kitchen Main level 2.42 m x 2.25 m
Dining room Main level 1.7 m x 2.36 m
Living room Main level 3.95 m x 5.42 m
Bedroom 2 Main level 3.16 m x 2.91 m
Primary Bedroom Main level 3.73 m x 4.14 m
Found a property your're looking for? Schedule a showing with our team. We're here to answer your questions and help you get a closer look.
John DiRenzo
Sales Representative RE/MAX Centre City John DiRenzo Team Brokerage
Direct Phone: (519) 857-3490
John DiRenzo, Salesperson. Cell: (519) 857-3490. RE/MAX Centre City John DiRenzo Team Brokerage.
Terms Of Use
This website is operated by RE/MAX Centre City John DiRenzo Team Brokerage, a brokerage who is a member of The Canadian Real Estate Association (CREA). The content on this website is owned or controlled by CREA. By accessing this website, the user agrees to be bound by these terms of use as amended from time to time, and agrees that these terms of use constitute a binding contract between the user, RE/MAX Centre City John DiRenzo Team Brokerage, and CREA.
The content on this website is protected by copyright and other laws, and is intended solely for the private, non-commercial use by individuals. Any other reproduction, distribution or use of the content, in whole or in part, is specifically prohibited. Prohibited uses include commercial use, "screen scraping", "database scraping", and any other activity intended to collect, store, reorganize or manipulate the content of this website.
Trademarks:
REALTOR®, REALTORS®, and the REALTOR® logo are certification marks that are owned by REALTOR® Canada Inc. and licensed exclusively to The Canadian Real Estate Association (CREA). These certification marks identify real estate professionals who are members of CREA and who must abide by CREA's By-Laws, Rules, and the REALTOR® Code. The MLS® trademark and the MLS® logo are owned by CREA and identify the professional real estate services provided by members of CREA. The data provided is for informational purposes only and should not be relied upon without verification.