Address: 1185 HONEYWOOD DR DRIVE, London South (South U) FOR SALE Postal Code: N6M0L6 Style: Detached Type: Single Family House Bedrooms: 4 Bathrooms: 3 Bedrooms Aboveground: 4 Parking: Attached Garage Garage: Attached Garage Lot Size: 36 ft ,7 in x 106 ft ,2 in Property Size: 36.6 x 106.2 FT Stories: 2
About 1185 Honeywood Dr Drive
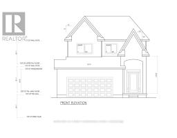
Modern Living Backing Onto Nature - The Emerald III Model to be build on a Walk-out Premium Lot. Don t miss this incredible opportunity to own a brand-new, thoughtfully designed home in the desirable Jacksons Meadows community. This Model offers 1,862 sq ft of functional, family-friendly living space with a striking steep front façade and a bright, open-concept layout. Backing onto a scenics trail and forest, this home delivers both privacy and picturesque views right from your backyard.The main floor features elegant hardwood flooring, oak stairs, and expansive windows that flood the space with natural light. The stylish kitchen is designed for both everyday living and entertaining, complete with a large quartz/granite island that flows into the dining area-perfectly positioned to enjoy the tranquil outdoor setting. The living room features an electric fireplace, creating a warm and modern ambiance. Upstairs, you ll find four spacious bedrooms, including a primary retreat with a walk-in closet finished 3-piece ensuite featuring quartz/granite countertops. A second 3-piece bathroom, convenient upper-level laundry, and a linen closet. Built by Vander Wielen Design & Build Inc., this to-be-built home allows buyers to personalize finishes, colours, and upgrades to match their unique style. Located in a rapidly growing neighbourhood, Jacksons Meadows offers exceptional convenience-close to schools, shopping, restaurants, parks, and quick access to Highway 401. A new state-of-the-art public school with childcare facilities is currently under construction nearby.Bonus: For a limited time, the builder is including a $7,500 appliance package. HST Rebate has been adjusted and is reflected in the listed price in accordance with the new temporarily HST Rebate regulations effective April 1, 2026. CONTACT Realtor for more details. Images are for illustration purposes only ; final design, materials, and finishes may vary depending on clients selections. (id:56071). Get more information on 1185 Honeywood Dr Drive
Property Features
Appliances: Water Heater, Water meter, Dishwasher, Dryer, Stove, Washer, Refrigerator Features: Wooded area, Carpet Free, Sump Pump Rental Equipment: Water Heater Fireplace Total: 1 Directions: Cross Streets: Darnley Blvd. ** Directions: Start Commissioners Road, head South on Jackson Road, take 2nd left onto Darnley Blvd (east), take 2nd right onto Honeywood Dr -1185 Honeywood Dr will be on your right (LotNo.12) located in jackson Meadows/ Summerside area (Southeast London). Interior Size: 1500 - 2000 sqft Amenities: Fireplace(s) Lot: 36.6 x 106.2 FT 36.6 x 106.2 FT Exterior Finish: Brick, Vinyl siding Flooring: Hardwood, Tile Water: Municipal water, Sanitary sewer Heating / Cooling: Electric / Central air conditioning Age: New building Foundation: Concrete Basement: N/A (Unfinished) Unfinished
Rooms & Sizes
Dining room Lower level 3.04 m x 4.08 m
Mud room Lower level 1.67 m x 1.46 m
Foyer Lower level 1.61 m x 2.43 m
Living room Lower level 5.18 m x 4.08 m
Kitchen Lower level 3.5 m x 4.08 m
Primary Bedroom Upper Level 4.49 m x 3.2 m
Bathroom Upper Level 3.35 m x 1.72 m
Bedroom 2 Upper Level 3.35 m x 3.04 m
Bedroom 3 Upper Level 3.04 m x 3.4 m
Bedroom 4 Upper Level 3.04 m x 3.4 m
Bathroom Upper Level 2.67 m x 1.61 m
Laundry room Upper Level 1.57 m x 1.82 m
Found a property your're looking for? Schedule a showing with our team. We're here to answer your questions and help you get a closer look.
John DiRenzo
Sales Representative RE/MAX Centre City John DiRenzo Team Brokerage
Direct Phone: (519) 857-3490
John DiRenzo, Salesperson. Cell: (519) 857-3490. RE/MAX Centre City John DiRenzo Team Brokerage.
Terms Of Use
This website is operated by RE/MAX Centre City John DiRenzo Team Brokerage, a brokerage who is a member of The Canadian Real Estate Association (CREA). The content on this website is owned or controlled by CREA. By accessing this website, the user agrees to be bound by these terms of use as amended from time to time, and agrees that these terms of use constitute a binding contract between the user, RE/MAX Centre City John DiRenzo Team Brokerage, and CREA.
The content on this website is protected by copyright and other laws, and is intended solely for the private, non-commercial use by individuals. Any other reproduction, distribution or use of the content, in whole or in part, is specifically prohibited. Prohibited uses include commercial use, "screen scraping", "database scraping", and any other activity intended to collect, store, reorganize or manipulate the content of this website.
Trademarks:
REALTOR®, REALTORS®, and the REALTOR® logo are certification marks that are owned by REALTOR® Canada Inc. and licensed exclusively to The Canadian Real Estate Association (CREA). These certification marks identify real estate professionals who are members of CREA and who must abide by CREA's By-Laws, Rules, and the REALTOR® Code. The MLS® trademark and the MLS® logo are owned by CREA and identify the professional real estate services provided by members of CREA. The data provided is for informational purposes only and should not be relied upon without verification.