Address: 14 NORTH RIDGE Terrace, Kitchener FOR SALE Subdivision: 228 - Chicopee/Freeport Postal Code: N2A2S5 Style: Detached 2 Level Type: Single Family House Maint/Condo. Fee: 185.00 Bedrooms: 4 Bathrooms: 6 Bedrooms Aboveground: 4 Bedrooms Belowground: 0 Parking: Attached Garage Garage: Attached Garage Lot Size: 68 ft x 135 ft Stories: 2
About 14 North Ridge Terrace
BRAND NEW MODERN LUXURY HOME backing onto Chicopee Park & Ski Resort! Proudly presented by Hanna Homes, a reputable high-end luxury builder with successful projects across Ontario. Only 14 homes will be built in this upscale subdivision accessed by a new private road ‘North Ridge Terrace’ surrounded by nature and lush forestry for optimal privacy. Lot 14 offers 3654 square feet of luxurious living space above grade. For a limited time, the builder is also including an additional 1066 square foot finished basement for a total of 4720 square feet. This spectacular two-storey walk-up home is elevator-ready and has a triple car (tandem) garage. Built with superior construction, exceptional quality and a pristine attention to detail using the highest level of materials and craftsmanship – designed for the most discerning buyers. The main level will feature impressive principal rooms with a gas fireplace and floor-to-ceiling windows allowing for beautiful natural light. A stunning gourmet kitchen designed for entertaining or culinary experts will be the perfect accompaniment. The upper level will feature 4 spacious bedrooms each with their own ensuite bathroom including an exquisite primary suite with a private glass balcony to enjoy breathtaking views of Chicopee Park. The Chicopee Heights neighbourhood is conveniently located with easy access to schools, shopping, restaurants, and highways (7, 8, 85 and 401). For outdoor enthusiasts, there is direct access to walking trails literally in your backyard as well as the Chicopee Ski and Tube Park. The private road will offer snow removal, private garage removal and common elements with a $185 per month road fee. This incredible Kitchener location is only an hour from Toronto. A full information package is available including approved home designs and drawings. (id:56071). Get more information on 14 North Ridge Terrace
Property Features
Appliances: Central Vacuum, Dishwasher, Dryer, Refrigerator, Washer, Microwave Built-in, Gas stove(s), Hood Fan, Wine Fridge, Garage door opener Features: Cul-de-sac, Ravine, Conservation/green belt, Balcony, Paved driveway, Sump Pump, Automatic Garage Door Opener Rental Equipment: Fireplace Total: 1 Directions: Take Volta Av to Chicopee Terrace to North Ridge Terrace Zoning Description: R3 Interior Size: 4720 sqft Community Features: Quiet Area, Community Centre, School Bus Access: Road access Lot: under 1/2 acre Exterior Finish: Brick, Stone, Stucco Water: Municipal water, Municipal sewage system Heating / Cooling: Natural gas / Central air conditioning Age: 2025 Foundation: Poured Concrete Constructed Date: 2025 Basement: Full (Finished) Finished
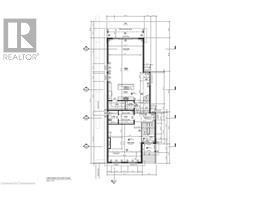
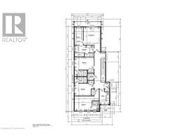
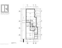
Rooms & Sizes
Laundry room Second level 8 1 x 10
4pc Bathroom Second level Measurements not available
Bedroom Second level 14 0 x 11 11
3pc Bathroom Second level Measurements not available
Bedroom Second level 13 5 x 10 2
3pc Bathroom Second level Measurements not available
Bedroom Second level 15 9 x 10 4
Full bathroom Second level Measurements not available
Primary Bedroom Second level 13 9 x 14 6
Mud room Basement 9 3 x 10 6
3pc Bathroom Basement Measurements not available
Recreation room Basement 24 4 x 16 5
2pc Bathroom Main level Measurements not available
Living room Main level 21 2 x 15 0
Dining room Main level 21 2 x 13 0
Pantry Main level 10 2 x 5 5
Kitchen Main level 16 2 x 10 6
Family room Main level 20 0 x 23 6
Foyer Main level 7 10 x 6
Found a property your're looking for? Schedule a showing with our team. We're here to answer your questions and help you get a closer look.
John DiRenzo
Sales Representative RE/MAX Centre City John DiRenzo Team Brokerage
Direct Phone: (519) 857-3490
John DiRenzo, Salesperson. Cell: (519) 857-3490. RE/MAX Centre City John DiRenzo Team Brokerage.
Terms Of Use
This website is operated by RE/MAX Centre City John DiRenzo Team Brokerage, a brokerage who is a member of The Canadian Real Estate Association (CREA). The content on this website is owned or controlled by CREA. By accessing this website, the user agrees to be bound by these terms of use as amended from time to time, and agrees that these terms of use constitute a binding contract between the user, RE/MAX Centre City John DiRenzo Team Brokerage, and CREA.
The content on this website is protected by copyright and other laws, and is intended solely for the private, non-commercial use by individuals. Any other reproduction, distribution or use of the content, in whole or in part, is specifically prohibited. Prohibited uses include commercial use, "screen scraping", "database scraping", and any other activity intended to collect, store, reorganize or manipulate the content of this website.
Trademarks:
REALTOR®, REALTORS®, and the REALTOR® logo are certification marks that are owned by REALTOR® Canada Inc. and licensed exclusively to The Canadian Real Estate Association (CREA). These certification marks identify real estate professionals who are members of CREA and who must abide by CREA's By-Laws, Rules, and the REALTOR® Code. The MLS® trademark and the MLS® logo are owned by CREA and identify the professional real estate services provided by members of CREA. The data provided is for informational purposes only and should not be relied upon without verification.