Brokered by: Van Londersele Real Estate Brokerage Ltd.
MLS®: 40814846 (Freehold)
Price: $589,900.00
Address: 1450 ELGIN COUNTY RD 55, Langton FOR SALE Subdivision: Rural Houghton Postal Code: N0E1G0 Style: Detached Type: Single Family House Bedrooms: 4 Bathrooms: 2 Bedrooms Aboveground: 4 Bedrooms Belowground: 0 Parking: Detached Garage Garage: Detached Garage Lot Size: 138 ft x 238 ft Stories: 1.5
About 1450 Elgin County Rd 55
Welcome to 1450 County Road 55! Your perfect escape to peaceful country living. Nestled on a generous ¾-acre lot, this spacious 4+ bedroom home offers an incredible opportunity for families seeking room to grow and unwind. The main floor features a welcoming oversized entry leading into a bright, eat-in kitchen, with a natural flow into two expansive living rooms, ideal for both relaxation and the option of a home office. Off the kitchen, you’ll find a sun porch entry, a convenient main floor bedroom, and a full 4-piece bathroom. Upstairs offers three additional bedrooms, another bathroom, and a versatile central space perfect as a fifth bedroom, office, or cozy lounge. The basement provides ample storage along with laundry and utilities, including an updated 200-amp electrical panel, modernized plumbing, and furnace. Outside, the detached two car garage has a new concrete floor with in-floor heating lines already installed, ready for completion. With a durable metal roof, aluminum siding, and no immediate neighbors, you’ll enjoy a private backyard with stunning, unobstructed country views. Don’t miss your chance to make this serene rural retreat your forever home. (id:56071). Get more information on 1450 Elgin County Rd 55
Property Features
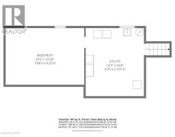
Features: Country residential Rental Equipment: Zoning Description: R Interior Size: 1800 sqft Community Features: School Bus Lot: 1/2 - 1.99 acres Exterior Finish: Vinyl siding Water: Sand point, Septic System Heating / Cooling: Natural gas / Central air conditioning Age: Basement: Partial (Unfinished) Unfinished
Rooms & Sizes
3pc Bathroom Second level 7 1 x 7 8
Office Second level 12 2 x 10 3
Bedroom Second level 12 0 x 12 0
Bedroom Second level 19 3 x 10 7
Bedroom Second level 16 2 x 10 9
Living room Main level 9 3 x 14 4
Living room Main level 19 3 x 10 6
Bedroom Main level 9 8 x 10 10
4pc Bathroom Main level 9 0 x 8 5
Sunroom Main level 14 3 x 6 4
Eat in kitchen Main level 14 4 x 16 10
Foyer Main level 9 0 x 11 0
Found a property your're looking for? Schedule a showing with our team. We're here to answer your questions and help you get a closer look.
John DiRenzo
Sales Representative RE/MAX Centre City John DiRenzo Team Brokerage
Direct Phone: (519) 857-3490
John DiRenzo, Salesperson. Cell: (519) 857-3490. RE/MAX Centre City John DiRenzo Team Brokerage.
Terms Of Use
This website is operated by RE/MAX Centre City John DiRenzo Team Brokerage, a brokerage who is a member of The Canadian Real Estate Association (CREA). The content on this website is owned or controlled by CREA. By accessing this website, the user agrees to be bound by these terms of use as amended from time to time, and agrees that these terms of use constitute a binding contract between the user, RE/MAX Centre City John DiRenzo Team Brokerage, and CREA.
The content on this website is protected by copyright and other laws, and is intended solely for the private, non-commercial use by individuals. Any other reproduction, distribution or use of the content, in whole or in part, is specifically prohibited. Prohibited uses include commercial use, "screen scraping", "database scraping", and any other activity intended to collect, store, reorganize or manipulate the content of this website.
Trademarks:
REALTOR®, REALTORS®, and the REALTOR® logo are certification marks that are owned by REALTOR® Canada Inc. and licensed exclusively to The Canadian Real Estate Association (CREA). These certification marks identify real estate professionals who are members of CREA and who must abide by CREA's By-Laws, Rules, and the REALTOR® Code. The MLS® trademark and the MLS® logo are owned by CREA and identify the professional real estate services provided by members of CREA. The data provided is for informational purposes only and should not be relied upon without verification.