Address: 15 Churchill Park ROAD, Chatham FOR SALE Postal Code: N7M6M2 Style: Detached 4 Level Bedrooms: 4 Bathrooms: 4 Bedrooms Aboveground: 3 Bedrooms Belowground: 1 Parking: Attached Garage Garage: Attached Garage Lot Size: x Property Size: 45.93 X 86.94 / 0.092 AC
About 15 Churchill Park Road
Modern style and thoughtful design shine in this beautifully finished 4-level side split at 15 Churchill Park. Featuring 3 bedrooms above grade plus a fourth in the fully finished lower level, the layout offers flexible living space ideal for families, guests, or a home office. Luxury grey vinyl flooring flows throughout, providing a durable, water- and scratch-resistant surface perfect for busy households with kids and pets. A hydronic hot water heating system delivers efficient, consistent warmth year-round. The standout kitchen blends function and elegance with quartz countertops, a farmhouse sink, KitchenAid stainless steel appliances, gas stove, walk-in pantry, soft-close and push-to-open cabinetry, under-cabinet and toe-kick lighting, a touch faucet, and an upgraded sensor garbage system. Contemporary finishes continue with cohesive black hardware, floating vanities with undermount lighting, and sleek builder-installed glass stair railings. A convenient 2-piece powder room sits just off the foyer. The third level is a private primary retreat with a spacious bedroom, walk-in closet, and stylish 3-piece En-suite with floating vanity. Laundry is also located here and includes quartz shelving for added storage and function. The fourth level offers two additional bedrooms and a full 4-piece bath, creating comfortable space for family or overnight guests. The fully finished lower level adds even more living space with an additional bedroom, full 3-piece bathroom, separate living area, and extra storage—ideal for extended family, teens, or visitors. Outside, enjoy a deck, fenced yard, concrete driveway, and gas BBQ hookup for easy outdoor entertaining. With three full bathrooms, a powder room, modern finishes throughout, efficient hydronic heating, and a turnkey lower level, this move-in ready home delivers the perfect blend of style, comfort, and functionality. Book your showing today. (id:56071). Get more information on 15 Churchill Park Road
Property Features
Appliances: Dishwasher, Dryer, Refrigerator, Stove, Washer Features: Double width or more driveway, Front Driveway Rental Equipment: Zoning Description: RES Lot: 45.93 X 86.94 / 0.092 AC|under 1/4 acre 45.93 X 86.94 / 0.092 AC Exterior Finish: Aluminum/Vinyl, Brick Flooring: Ceramic/Porcelain, Cushion/Lino/Vinyl Water: , Heating / Cooling: Natural gas / Central air conditioning Age: 2020 Foundation: Concrete Constructed Date: 2020 Basement:
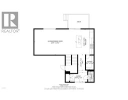
Rooms & Sizes
Laundry room Second level 7 ft ,11 in x 5 ft ,2 in
3pc Ensuite bath Second level Measurements not available
Primary Bedroom Second level 17 ft ,4 in x 12 ft ,2 in
Bedroom Third level 11 ft ,7 in x 10 ft ,6 in
4pc Bathroom Third level Measurements not available
Bedroom Third level 10 ft ,6 in x 10 ft ,4 in
Bedroom Lower level 6 ft ,4 in x 5 ft ,8 in
3pc Bathroom Lower level Measurements not available
Family room Lower level 21 ft ,10 in x 13 ft ,5 in
2pc Bathroom Main level Measurements not available
Other Main level 8 ft x 4 ft ,4 in
Kitchen/Dining room Main level 15 ft ,3 in x 14 ft ,3 in
Living room Main level 17 ft ,8 in x 14 ft ,3 in
Foyer Main level 9 ft ,8 in x 4 ft ,2 in
Found a property your're looking for? Schedule a showing with our team. We're here to answer your questions and help you get a closer look.
John DiRenzo
Sales Representative RE/MAX Centre City John DiRenzo Team Brokerage
Direct Phone: (519) 857-3490
John DiRenzo, Salesperson. Cell: (519) 857-3490. RE/MAX Centre City John DiRenzo Team Brokerage.
Terms Of Use
This website is operated by RE/MAX Centre City John DiRenzo Team Brokerage, a brokerage who is a member of The Canadian Real Estate Association (CREA). The content on this website is owned or controlled by CREA. By accessing this website, the user agrees to be bound by these terms of use as amended from time to time, and agrees that these terms of use constitute a binding contract between the user, RE/MAX Centre City John DiRenzo Team Brokerage, and CREA.
The content on this website is protected by copyright and other laws, and is intended solely for the private, non-commercial use by individuals. Any other reproduction, distribution or use of the content, in whole or in part, is specifically prohibited. Prohibited uses include commercial use, "screen scraping", "database scraping", and any other activity intended to collect, store, reorganize or manipulate the content of this website.
Trademarks:
REALTOR®, REALTORS®, and the REALTOR® logo are certification marks that are owned by REALTOR® Canada Inc. and licensed exclusively to The Canadian Real Estate Association (CREA). These certification marks identify real estate professionals who are members of CREA and who must abide by CREA's By-Laws, Rules, and the REALTOR® Code. The MLS® trademark and the MLS® logo are owned by CREA and identify the professional real estate services provided by members of CREA. The data provided is for informational purposes only and should not be relied upon without verification.