Brokered by: RE/MAX Erie Shores Realty Inc. Brokerage
MLS®: 40815027 (Freehold)
Price: $449,900.00
Address: 1513 OLD BROCK Street, Vittoria FOR SALE Subdivision: Vittoria Postal Code: N0E1W0 Style: Detached Type: Single Family House Bedrooms: 3 Bathrooms: 2 Bedrooms Aboveground: 3 Bedrooms Belowground: 0 Parking: Detached Garage Garage: Detached Garage Lot Size: 67 ft x 143 ft Property Size: 0.22 Stories: 2.5
About 1513 Old Brock Street
Your chance to own a bit of Vittoria s History! This 3 Bed, 1.5 Bath home is located on a large 67 x 143 ft lot where before the house was built, existed a dried fruit business during the First World War. Both floors feature hardwood floors, lots of beautiful wooden trim work, spacious rooms with tones of potential. The second floor features 3 bedrooms, 1 bath and a gorgeous sunroom overlooking Old Brock Road. When you peek into the Attic there is a wonderful amount of storage and possibly more space to finish in the future. The detached 2 storey Garage/Workshop is an amazing space. At 22 x 26 with lots of storage upstairs and the potential for an Office, it could suit many needs including a home based business. Home is on well and septic. (id:56071). Get more information on 1513 Old Brock Street
Property Features
Appliances: Dishwasher, Dryer, Refrigerator, Stove, Washer, Window Coverings Features: Country residential, Automatic Garage Door Opener Rental Equipment: Water Heater Zoning Description: RH Interior Size: 1562 sqft Lot: 0.22 ac|under 1/2 acre 0.22 Exterior Finish: Stucco, Vinyl siding Water: Well, Septic System Heating / Cooling: Natural gas / Central air conditioning Age: 1936 Foundation: Block Constructed Date: 1936 Basement: Full (Unfinished) Unfinished
Rooms & Sizes
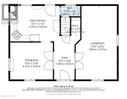
Sunroom Second level 11 7 x 10 1
Foyer Second level 8 3 x 15 4
Bedroom Second level 13 6 x 10 11
Bedroom Second level 13 6 x 12 0
Bedroom Second level 12 2 x 12 0
4pc Bathroom Second level Measurements not available
2pc Bathroom Main level Measurements not available
Living room Main level 13 0 x 23 2
Foyer Main level 6 5 x 13 9
Dining room Main level 13 5 x 11 8
Eat in kitchen Main level 15 7 x 11 3
Found a property your're looking for? Schedule a showing with our team. We're here to answer your questions and help you get a closer look.
John DiRenzo
Sales Representative RE/MAX Centre City John DiRenzo Team Brokerage
Direct Phone: (519) 857-3490
John DiRenzo, Salesperson. Cell: (519) 857-3490. RE/MAX Centre City John DiRenzo Team Brokerage.
Terms Of Use
This website is operated by RE/MAX Centre City John DiRenzo Team Brokerage, a brokerage who is a member of The Canadian Real Estate Association (CREA). The content on this website is owned or controlled by CREA. By accessing this website, the user agrees to be bound by these terms of use as amended from time to time, and agrees that these terms of use constitute a binding contract between the user, RE/MAX Centre City John DiRenzo Team Brokerage, and CREA.
The content on this website is protected by copyright and other laws, and is intended solely for the private, non-commercial use by individuals. Any other reproduction, distribution or use of the content, in whole or in part, is specifically prohibited. Prohibited uses include commercial use, "screen scraping", "database scraping", and any other activity intended to collect, store, reorganize or manipulate the content of this website.
Trademarks:
REALTOR®, REALTORS®, and the REALTOR® logo are certification marks that are owned by REALTOR® Canada Inc. and licensed exclusively to The Canadian Real Estate Association (CREA). These certification marks identify real estate professionals who are members of CREA and who must abide by CREA's By-Laws, Rules, and the REALTOR® Code. The MLS® trademark and the MLS® logo are owned by CREA and identify the professional real estate services provided by members of CREA. The data provided is for informational purposes only and should not be relied upon without verification.