Address: 1681 KING Street N, St. Jacobs FOR SALE Subdivision: 553 - St Jacobs/Floradale/W.Montrose Postal Code: N0B2N0 Style: Detached Bungalow Type: Single Family House Bedrooms: 1 Bathrooms: 2 Bedrooms Aboveground: 1 Bedrooms Belowground: 0 Parking: Attached Garage Garage: Attached Garage Lot Size: 213 ft x Property Size: 0.357 Stories: 1
About 1681 King Street N
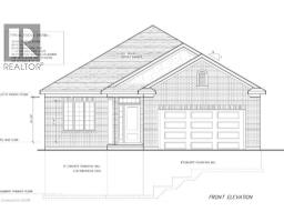
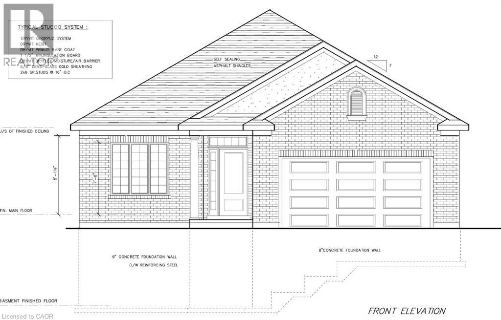
Take advantage of this rare opportunity to build your dream home on the north end of St. Jacobs on this beautifully treed 1/3rd acre lot. The possibilities are endless. You can have the award winning Geimer Custom Homes build you this beautiful open concept bungalow with quality high end finishes, 9 foot ceilings, 5 piece ensuite bath, 4 piece main bathroom, den or 2nd bedroom, or bring your own ideas/renderings and have them put to paper. The lot is large enough to add a shop/detached garage/ADU/pool. Enjoy walking the shops of downtown St. Jacobs or the surrounding nature trails. The property is centrally located within a 5 minute drive to Waterloo, Elmira, Conestogo Golf Course and 15 min to Guelph. Call me anytime to turn your dreams into reality. (id:56071). Get more information on 1681 King Street N
Property Features
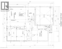
Features: Country residential Rental Equipment: Water Heater Directions: Sawmill Rd to King St N Zoning Description: R3 Interior Size: 1591 sqft Community Features: Community Centre, School Bus Access: Road access, Highway access Lot: 0.357 ac|under 1/2 acre 0.357 Exterior Finish: Concrete Water: Municipal water, Septic System Heating / Cooling: Natural gas / Central air conditioning Age: Foundation: Poured Concrete Basement: Full (Unfinished) Unfinished
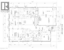
Rooms & Sizes
4pc Bathroom Main level Measurements not available
Full bathroom Main level Measurements not available
Den Main level 11 6 x 11 4
Living room Main level 32 3 x 12 0
Kitchen/Dining room Main level 24 2 x 12
Primary Bedroom Main level 12 2 x 13 8
Found a property your're looking for? Schedule a showing with our team. We're here to answer your questions and help you get a closer look.
John DiRenzo
Sales Representative RE/MAX Centre City John DiRenzo Team Brokerage
Direct Phone: (519) 857-3490
John DiRenzo, Salesperson. Cell: (519) 857-3490. RE/MAX Centre City John DiRenzo Team Brokerage.
Terms Of Use
This website is operated by RE/MAX Centre City John DiRenzo Team Brokerage, a brokerage who is a member of The Canadian Real Estate Association (CREA). The content on this website is owned or controlled by CREA. By accessing this website, the user agrees to be bound by these terms of use as amended from time to time, and agrees that these terms of use constitute a binding contract between the user, RE/MAX Centre City John DiRenzo Team Brokerage, and CREA.
The content on this website is protected by copyright and other laws, and is intended solely for the private, non-commercial use by individuals. Any other reproduction, distribution or use of the content, in whole or in part, is specifically prohibited. Prohibited uses include commercial use, "screen scraping", "database scraping", and any other activity intended to collect, store, reorganize or manipulate the content of this website.
Trademarks:
REALTOR®, REALTORS®, and the REALTOR® logo are certification marks that are owned by REALTOR® Canada Inc. and licensed exclusively to The Canadian Real Estate Association (CREA). These certification marks identify real estate professionals who are members of CREA and who must abide by CREA's By-Laws, Rules, and the REALTOR® Code. The MLS® trademark and the MLS® logo are owned by CREA and identify the professional real estate services provided by members of CREA. The data provided is for informational purposes only and should not be relied upon without verification.