Brokered by: Royal Lepage R.E. Wood Realty Brokerage
MLS®: X12513384 (Freehold)
Price: $699,900.00
Address: 18 DEMEYERE AVENUE, Tillsonburg FOR SALE Postal Code: N4G5C6 Style: Detached Bungalow Type: Single Family House Bedrooms: 3 Bathrooms: 3 Bedrooms Aboveground: 3 Bedrooms Belowground: 0 Parking: Attached Garage Garage: Attached Garage Lot Size: 107 ft x 79 ft Property Size: 107 x 79 FT Stories: 1
About 18 Demeyere Avenue
Comfortable, convenient living at last! Immaculately maintained and located in one of Tillsonburg s most desirable areas, 18 Demeyere Ave offers so much value inside and out. The main level of this tastefully renovated bungalow features 3 bedrooms, 1 full bath + 2 half baths AND main floor laundry. Fully custom eat-in kitchen with titanium granite counters, maple cabinetry and stainless steel appliances, hardwood flooring, and a living room with bay window. An abundance of natural light throughout makes this home inviting year round! The finished lower level includes soaring ceiling heights, a family room with built-in fireplace, exercise room, office, fully custom tiled bath, utility room, cold cellar, and bonus exercise room with massive storage closet. There s even extra storage in the utility room; finally space to organize belongings. Outside the attention to detail and beauty continues on this corner lot with quality stamped concrete work, professional gardens, deck, patio, gazebos, sheds, and ultra private side yard. Driveway access from Demeyere Ave and Alexander Ave is an added benefit to this extra wide corner lot! 1.5 car garage with additional built-in storage and easy access to laundry/washroom. Other notable features include commercial water softener, irrigation system, upgraded windows, soffit, fascia, H/E central air, garage door and upgraded shingles. The improvements are extensive and sure to impress! (id:56071). Get more information on 18 Demeyere Avenue
Property Features
Appliances: Hot Tub, Water softener, Central Vacuum, Water meter, Dishwasher, Dryer, Garage door opener, Microwave, Oven, Range, Storage Shed, Washer, Window Coverings, Refrigerator Features: Sloping, Lighting, Dry Landscape: Lawn sprinkler Rental Equipment: Water Heater Fireplace Total: 2 Directions: Cross Streets: Alexander Ave. ** Directions: From Tillson Ave heading South: turn East onto Concession, turn South onto Maple Lane, Turn East onto Demeyere Ave. Property is at the corner of Demeyere Ave & Alexander Ave. Zoning Description: R1 Interior Size: 1100 - 1500 sqft Fence: Fenced yard Amenities: Fireplace(s) Lot: 107 x 79 FT|under 1/2 acre 107 x 79 FT Exterior Finish: Brick Water: Municipal water, Sanitary sewer Heating / Cooling: Natural gas / Central air conditioning Age: 31 to 50 years Foundation: Block, Poured Concrete Basement: Full (Finished) Finished
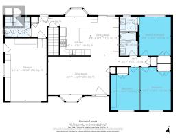
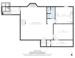
Rooms & Sizes
Cold room Basement 1.3 m x 1.5 m
Recreational, Games room Basement 8.23 m x 7.9 m
Office Basement 4.29 m x 1.78 m
Exercise room Basement 4.65 m x 3.76 m
Utility room Basement 4.19 m x 4.01 m
Dining room Main level 2.84 m x 3.94 m
Laundry room Main level 2.54 m x 2.06 m
Living room Main level 7.19 m x 3.86 m
Kitchen Main level 3.15 m x 3.94 m
Bedroom Main level 2.92 m x 4.39 m
Bedroom Main level 3.12 m x 4.39 m
Primary Bedroom Main level 3.25 m x 3.96 m
Found a property your're looking for? Schedule a showing with our team. We're here to answer your questions and help you get a closer look.
John DiRenzo
Sales Representative RE/MAX Centre City John DiRenzo Team Brokerage
Direct Phone: (519) 857-3490
Brokered by: Royal Lepage R.E. Wood Realty Brokerage
John DiRenzo, Salesperson. Cell: (519) 857-3490. RE/MAX Centre City John DiRenzo Team Brokerage.
Terms Of Use
This website is operated by RE/MAX Centre City John DiRenzo Team Brokerage, a brokerage who is a member of The Canadian Real Estate Association (CREA). The content on this website is owned or controlled by CREA. By accessing this website, the user agrees to be bound by these terms of use as amended from time to time, and agrees that these terms of use constitute a binding contract between the user, RE/MAX Centre City John DiRenzo Team Brokerage, and CREA.
The content on this website is protected by copyright and other laws, and is intended solely for the private, non-commercial use by individuals. Any other reproduction, distribution or use of the content, in whole or in part, is specifically prohibited. Prohibited uses include commercial use, "screen scraping", "database scraping", and any other activity intended to collect, store, reorganize or manipulate the content of this website.
Trademarks:
REALTOR®, REALTORS®, and the REALTOR® logo are certification marks that are owned by REALTOR® Canada Inc. and licensed exclusively to The Canadian Real Estate Association (CREA). These certification marks identify real estate professionals who are members of CREA and who must abide by CREA's By-Laws, Rules, and the REALTOR® Code. The MLS® trademark and the MLS® logo are owned by CREA and identify the professional real estate services provided by members of CREA. The data provided is for informational purposes only and should not be relied upon without verification.