Brokered by: RE/MAX Erie Shores Realty Inc. Brokerage
MLS®: 40797985 (Freehold)
Price: $728,320.00
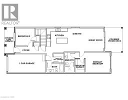
Address: 183 CRADDOCK Boulevard, Jarvis FOR SALE Subdivision: 896 - Jarvis Postal Code: N0A1J0 Style: Detached Bungalow Type: Single Family House Bedrooms: 2 Bathrooms: 2 Bedrooms Aboveground: 2 Bedrooms Belowground: 0 Parking: Attached Garage Garage: Attached Garage Lot Size: 39 ft x 108 ft Stories: 1
About 183 Craddock Boulevard
Welcome to 183 Craddock Blvd in Jarvis. Don t miss out on this to be built beautiful 2 bed, 2 bath, 1141 sq. ft. bungalow in the Jarvis Meadows subdivision. This home is perfect for starting out or downsizing! Primary Bedroom has 4pc ensuite with tiled shower and walk in closet. Open concept kitchen/dining/living room. Add your own personal touch with the assistance of our professional designer. 1 car garage and private drive. Covered porch in front and covered deck out back - perfect for entertaining. All beautifully and professionally finished with modern trim, quartz counters, etc. (id:56071). Get more information on 183 Craddock Boulevard
Property Features
Features: Automatic Garage Door Opener Rental Equipment: Water Heater Directions: No.3 Hwy turn left onto Saunders then right onto Lafayette. Follow Lafayette to Craddock. Zoning Description: R1-B Interior Size: 1141 sqft Access: Road access Lot: under 1/2 acre Exterior Finish: Brick Veneer, Other Water: Municipal water, Municipal sewage system Heating / Cooling: Natural gas / Central air conditioning Age: Foundation: Poured Concrete Basement: Full (Unfinished) Unfinished
Rooms & Sizes
Laundry room Main level 5 10 x 5 0
Great room Main level 20 11 x 13 1
Kitchen Main level 13 9 x 11 6
Primary Bedroom Main level 11 1 x 13 8
Full bathroom Main level 7 6 x 5 6
4pc Bathroom Main level 9 7 x 5 0
Bedroom Main level 9 11 x 10 8
Foyer Main level 4 0 x 15 11
Found a property your're looking for? Schedule a showing with our team. We're here to answer your questions and help you get a closer look.
John DiRenzo
Sales Representative RE/MAX Centre City John DiRenzo Team Brokerage
Direct Phone: (519) 857-3490
Brokered by: RE/MAX Erie Shores Realty Inc. Brokerage
John DiRenzo, Salesperson. Cell: (519) 857-3490. RE/MAX Centre City John DiRenzo Team Brokerage.
Terms Of Use
This website is operated by RE/MAX Centre City John DiRenzo Team Brokerage, a brokerage who is a member of The Canadian Real Estate Association (CREA). The content on this website is owned or controlled by CREA. By accessing this website, the user agrees to be bound by these terms of use as amended from time to time, and agrees that these terms of use constitute a binding contract between the user, RE/MAX Centre City John DiRenzo Team Brokerage, and CREA.
The content on this website is protected by copyright and other laws, and is intended solely for the private, non-commercial use by individuals. Any other reproduction, distribution or use of the content, in whole or in part, is specifically prohibited. Prohibited uses include commercial use, "screen scraping", "database scraping", and any other activity intended to collect, store, reorganize or manipulate the content of this website.
Trademarks:
REALTOR®, REALTORS®, and the REALTOR® logo are certification marks that are owned by REALTOR® Canada Inc. and licensed exclusively to The Canadian Real Estate Association (CREA). These certification marks identify real estate professionals who are members of CREA and who must abide by CREA's By-Laws, Rules, and the REALTOR® Code. The MLS® trademark and the MLS® logo are owned by CREA and identify the professional real estate services provided by members of CREA. The data provided is for informational purposes only and should not be relied upon without verification.