Address: 19 WOODLAND Drive, Cambridge FOR SALE Subdivision: 22 - Churchill Park/Moffatt Creek Postal Code: N1R2X7 Style: Detached 2 Level Type: Single Family House Bedrooms: 6 Bathrooms: 3 Bedrooms Aboveground: 5 Bedrooms Belowground: 1 Parking: Attached Garage Garage: Attached Garage Lot Size: 70 ft x 100 ft Property Size: 0.16 Stories: 2
About 19 Woodland Drive
Welcome to 19 Woodland Drive, a beautifully updated family home located in a highly desirable area of Cambridge, backing directly onto Churchill Park. Set on a generous lot in a mature neighbourhood, this property offers privacy, space, and an exceptional lifestyle. Boasting approximately 2,480 sq ft of living space, this home features 5 spacious bedrooms and 3 bathrooms, ideal for growing families or multi-generational living. A thoughtfully designed addition completed in 2019 enhances both functionality and modern appeal. The heart of the home is the stunning new kitchen, complete with a large island, perfect for entertaining, family gatherings, and everyday living. The home also includes a full in-law suite with a separate entrance, offering excellent flexibility as a mortgage helper or private space for extended family. Step outside to your own backyard oasis, professionally landscaped and designed for entertaining. Enjoy summers in the heated in-ground saltwater pool, unwind by the outdoor fireplace, and take in the peaceful setting with no rear neighbours. Additional highlights include an attached garage, private driveway, and a prime location close to parks, schools, and amenities. A rare opportunity to own a turn-key home in one of Cambridge’s most sought-after neighbourhoods. (id:56071). Get more information on 19 Woodland Drive
Property Features
Appliances: Dishwasher, Dryer, Refrigerator, Stove, Washer, Hood Fan, Window Coverings, Garage door opener Features: Backs on greenbelt, Conservation/green belt, Paved driveway, Automatic Garage Door Opener, In-Law Suite Rental Equipment: Rental Water Softener, Water Heater Fireplace Total: 14 Fireplace: Wood Other - See remarks Pool Type: Inground pool Zoning Description: RM4 Interior Size: 2480 sqft Community Features: Quiet Area, Community Centre, School Bus Lot: 0.16 ac|under 1/2 acre 0.16 Exterior Finish: Brick, Vinyl siding Water: Municipal water, Municipal sewage system Heating / Cooling: Natural gas / Central air conditioning Age: 1961 Foundation: Poured Concrete Constructed Date: 1961 Basement: Full (Finished) Finished
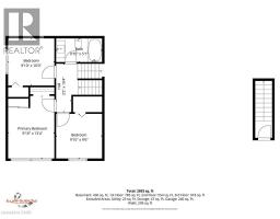
Rooms & Sizes
4pc Bathroom Second level 9 3 x 4 9
Bedroom Second level 9 7 x 9 5
Bedroom Second level 10 0 x 10 3
Primary Bedroom Second level 10 1 x 13 0
4pc Bathroom Third level 5 4 x 8 6
Laundry room Third level 5 6 x 5 9
Bedroom Third level 10 4 x 10 5
Bedroom Third level 10 7 x 12 6
Family room Third level 14 1 x 12 9
Dinette Third level 9 3 x 9 2
Kitchen Third level 8 5 x 13 1
3pc Bathroom Basement 5 5 x 7 4
Bedroom Basement 9 3 x 19 4
Living room Main level 28 8 x 12 9
Kitchen Main level 20 2 x 14 0
Foyer Main level 5 4 x 14 9
Found a property your're looking for? Schedule a showing with our team. We're here to answer your questions and help you get a closer look.
John DiRenzo
Sales Representative RE/MAX Centre City John DiRenzo Team Brokerage
Direct Phone: (519) 857-3490
John DiRenzo, Salesperson. Cell: (519) 857-3490. RE/MAX Centre City John DiRenzo Team Brokerage.
Terms Of Use
This website is operated by RE/MAX Centre City John DiRenzo Team Brokerage, a brokerage who is a member of The Canadian Real Estate Association (CREA). The content on this website is owned or controlled by CREA. By accessing this website, the user agrees to be bound by these terms of use as amended from time to time, and agrees that these terms of use constitute a binding contract between the user, RE/MAX Centre City John DiRenzo Team Brokerage, and CREA.
The content on this website is protected by copyright and other laws, and is intended solely for the private, non-commercial use by individuals. Any other reproduction, distribution or use of the content, in whole or in part, is specifically prohibited. Prohibited uses include commercial use, "screen scraping", "database scraping", and any other activity intended to collect, store, reorganize or manipulate the content of this website.
Trademarks:
REALTOR®, REALTORS®, and the REALTOR® logo are certification marks that are owned by REALTOR® Canada Inc. and licensed exclusively to The Canadian Real Estate Association (CREA). These certification marks identify real estate professionals who are members of CREA and who must abide by CREA's By-Laws, Rules, and the REALTOR® Code. The MLS® trademark and the MLS® logo are owned by CREA and identify the professional real estate services provided by members of CREA. The data provided is for informational purposes only and should not be relied upon without verification.