Address: 216 IRONWOOD TRAIL, Chatham FOR SALE Postal Code: N7M0T3 Style: Detached Bungalow, Ranch Type: Single Family House Bedrooms: 3 Bathrooms: 2 Bedrooms Aboveground: 3 Bedrooms Belowground: 0 Parking: Garage Garage: Garage Lot Size: x Property Size: 35 X 125 / 0.1 AC Stories: 1
About 216 Ironwood Trail
Move in Ready! Offering almost 1400 square feet of living space, this stunning brand new bungalow showcases an open concept layout that seamlessly blends style and function, with inviting front and rear covered porches perfect for enjoying both indoor and outdoor living. The modern kitchen features elegant quartz countertops and flows effortlessly into the dining and living areas, creating the ideal space for entertaining. Patio doors off the dining room lead to a covered deck, extending your living space outdoors. Unwind in the spacious primary suite, complete with a walk-in closet and private ensuite. Every detail has been carefully selected, from durable finishes to an Energy Star rating ensuring long-term comfort, efficiency, and peace of mind. The price includes a concrete driveway, fully fenced yard, and sod in both the front and backyard—offering true move-in-ready convenience. Backed by quality craftsmanship by Maple City homes Ltd., this home is perfect for those seeking modern living with no compromises. All deposits payable to Maple City Homes Ltd. The listed price reflects the anticipated HST rebate for the period of April 1, 2026 through March 31, 2027, with all rebate amounts assigned to the builder. The discounted price is conditional upon the Buyer qualifying for the applicable rebates and subject to the rebate program being enacted into law. If the buyer does not qualify or the rebates are not fully approved, the purchase price will increase by the full amount of HST. Book a showing today! (id:56071). Get more information on 216 Ironwood Trail
Property Features
Features: Double width or more driveway, Concrete Driveway Rental Equipment: Zoning Description: RES Interior Size: 1397 sqft Lot: 35 X 125 / 0.1 AC|under 1/4 acre 35 X 125 / 0.1 AC Exterior Finish: Aluminum/Vinyl, Stone Flooring: Carpeted, Cushion/Lino/Vinyl Water: , Heating / Cooling: Natural gas / Central air conditioning, Fully air conditioned Age: 2025 Foundation: Concrete Finished Area: 1397 sqft Constructed Date: 2025 Basement:
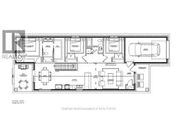
Rooms & Sizes
Dining room Main level 10 ft x Measurements not available
4pc Bathroom Main level 8 ft x 3 ft ,8 in
Bedroom Main level 10 ft x 9 ft ,8 in
Bedroom Main level 10 ft x 9 ft ,6 in
3pc Ensuite bath Main level 12 ft x 5 ft
Primary Bedroom Main level 12 ft ,6 in x 12 ft
Foyer Main level 4 ft x 13 ft ,6 in
Living room Main level 16 ft ,10 in x Measurements not available
Kitchen Main level 17 ft ,4 in x 12 ft ,10 in
Found a property your're looking for? Schedule a showing with our team. We're here to answer your questions and help you get a closer look.
John DiRenzo
Sales Representative RE/MAX Centre City John DiRenzo Team Brokerage
Direct Phone: (519) 857-3490
John DiRenzo, Salesperson. Cell: (519) 857-3490. RE/MAX Centre City John DiRenzo Team Brokerage.
Terms Of Use
This website is operated by RE/MAX Centre City John DiRenzo Team Brokerage, a brokerage who is a member of The Canadian Real Estate Association (CREA). The content on this website is owned or controlled by CREA. By accessing this website, the user agrees to be bound by these terms of use as amended from time to time, and agrees that these terms of use constitute a binding contract between the user, RE/MAX Centre City John DiRenzo Team Brokerage, and CREA.
The content on this website is protected by copyright and other laws, and is intended solely for the private, non-commercial use by individuals. Any other reproduction, distribution or use of the content, in whole or in part, is specifically prohibited. Prohibited uses include commercial use, "screen scraping", "database scraping", and any other activity intended to collect, store, reorganize or manipulate the content of this website.
Trademarks:
REALTOR®, REALTORS®, and the REALTOR® logo are certification marks that are owned by REALTOR® Canada Inc. and licensed exclusively to The Canadian Real Estate Association (CREA). These certification marks identify real estate professionals who are members of CREA and who must abide by CREA's By-Laws, Rules, and the REALTOR® Code. The MLS® trademark and the MLS® logo are owned by CREA and identify the professional real estate services provided by members of CREA. The data provided is for informational purposes only and should not be relied upon without verification.