Address: 2161 TRIBALWOOD STREET, London North (North E) FOR SALE Postal Code: N6G0R5 Style: Detached Type: Single Family House Bedrooms: 3 Bathrooms: 3 Bedrooms Aboveground: 3 Parking: Attached Garage Garage: Attached Garage Lot Size: 30 ft ,7 in x 107 ft ,8 in Property Size: 30.6 x 107.7 FT Stories: 2
About 2161 Tribalwood Street
Welcome to this stunning 2 storey contemporary home situated in a highly desirable Hyde Park neighbourhood of North West London. This exceptional home showcases a perfect blend of modern design, functional living spaces & convenient location.Step inside to a bright & inviting open concept main level featuring 9 ceilings, loads of pot lights, engineered hardwood & ceramic flooring, 2pc bath and a sleek gourmet kitchen complete with ample cabinetry & storage space. The living & dining areas are flooded with natural light from large windows and a patio door leading to a fenced yard, ideal for relaxing or entertaining. Upstairs, you ll find all new hard surface flooring and a thoughtfully designed layout that includes a large primary bedroom with 2 walk-in closets and a 3pc ensuite bath with a tiled walk-in glass shower. Two additional spacious bedrooms, 4pc bath and convenient upper level Laundry. Freshly painted throughout, this move in ready home also features 3 car parking. All of this conveniently located close to all amenities, only steps to Walmart, Winners, Home Sense, LCBO, dental/medical clinics, banks, schools, parks, bus stops and much more! Don t miss out on this incredible opportunity to make this contemporary move in ready home your own! (id:56071). Get more information on 2161 Tribalwood Street
Property Features
Appliances: Dishwasher, Microwave, Range Features: Sump Pump Rental Equipment: Water Heater Directions: Tribalwood St & Blackacres Blvd Zoning Description: R1-13(3) Interior Size: 1500 - 2000 sqft Fence: Fenced yard Lot: 30.6 x 107.7 FT 30.6 x 107.7 FT Exterior Finish: Brick, Vinyl siding Water: Municipal water, Sanitary sewer Heating / Cooling: Natural gas / Central air conditioning, Air exchanger Age: Foundation: Poured Concrete Basement: Full (Unfinished) Unfinished
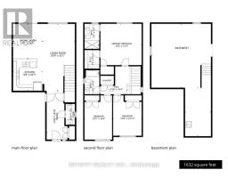
Rooms & Sizes
Primary Bedroom Second level 4.52 m x 4.67 m
Bedroom Second level 3.2 m x 3.81 m
Bedroom Second level 3.07 m x 4.21 m
Foyer Main level 4.8 m x 1.78 m
Living room Main level 2.94 m x 4.64 m
Dining room Main level 2.94 m x 3.3 m
Kitchen Main level 2.94 m x 3.4 m
Found a property your're looking for? Schedule a showing with our team. We're here to answer your questions and help you get a closer look.
John DiRenzo
Sales Representative RE/MAX Centre City John DiRenzo Team Brokerage
Direct Phone: (519) 857-3490
John DiRenzo, Salesperson. Cell: (519) 857-3490. RE/MAX Centre City John DiRenzo Team Brokerage.
Terms Of Use
This website is operated by RE/MAX Centre City John DiRenzo Team Brokerage, a brokerage who is a member of The Canadian Real Estate Association (CREA). The content on this website is owned or controlled by CREA. By accessing this website, the user agrees to be bound by these terms of use as amended from time to time, and agrees that these terms of use constitute a binding contract between the user, RE/MAX Centre City John DiRenzo Team Brokerage, and CREA.
The content on this website is protected by copyright and other laws, and is intended solely for the private, non-commercial use by individuals. Any other reproduction, distribution or use of the content, in whole or in part, is specifically prohibited. Prohibited uses include commercial use, "screen scraping", "database scraping", and any other activity intended to collect, store, reorganize or manipulate the content of this website.
Trademarks:
REALTOR®, REALTORS®, and the REALTOR® logo are certification marks that are owned by REALTOR® Canada Inc. and licensed exclusively to The Canadian Real Estate Association (CREA). These certification marks identify real estate professionals who are members of CREA and who must abide by CREA's By-Laws, Rules, and the REALTOR® Code. The MLS® trademark and the MLS® logo are owned by CREA and identify the professional real estate services provided by members of CREA. The data provided is for informational purposes only and should not be relied upon without verification.