Brokered by: OAK AND KEY REAL ESTATE BROKERAGE, INC.
MLS®: X12832146 (Freehold)
Price: $879,900.00
Address: 2180 LILAC AVENUE, London South (South K) FOR SALE Postal Code: N6K5C5 Style: Detached Type: Single Family House Bedrooms: 3 Bathrooms: 4 Bedrooms Aboveground: 3 Parking: Attached Garage Garage: Attached Garage Lot Size: 39 ft ,10 in x 103 ft ,8 in Property Size: 39.9 x 103.7 FT Stories: 2
About 2180 Lilac Avenue
Welcome to 2180 Lilac Avenue. This stunning residence in the heart of London offers the perfect blend of sophisticated indoor living and a private outdoor oasis. The main floor boasts an open-concept layout with ample natural light, leading to a spacious kitchen perfect for the home chef. Retreat to the fully finished basement, featuring a versatile rec room, additional storage, and potential for a home gym or office. The crown jewel is the backyard, a professionally landscaped retreat complete with a sparkling inground pool, ideal for summer hosting and family fun. Close to top-rated schools, parks, and amenities-this is the one you ve been waiting for! (id:56071). Get more information on 2180 Lilac Avenue
Property Features
Appliances: Garage door opener remote(s), Dishwasher, Dryer, Stove, Washer, Refrigerator Features: Sump Pump Rental Equipment: Fireplace Total: 1 Pool Type: Inground pool Directions: Cross Streets: Byron Baseline/Wickerson. ** Directions: South on Wickerson, East on Ironwood, South on Lilac. Interior Size: 1500 - 2000 sqft Amenities: Fireplace(s) Lot: 39.9 x 103.7 FT 39.9 x 103.7 FT Exterior Finish: Brick, Vinyl siding Water: Municipal water, Sanitary sewer Heating / Cooling: Natural gas / Central air conditioning Age: Foundation: Concrete Basement: Full (Finished) Finished
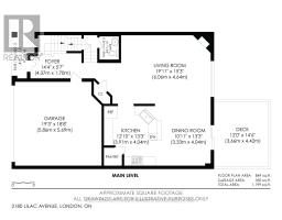
Rooms & Sizes
Bedroom 2 Second level 3.44 m x 3.16 m
Bedroom 3 Second level 3.56 m x 3.89 m
Laundry room Second level 1.83 m x 1.76 m
Bathroom Second level 2.76 m x 1.67 m
Primary Bedroom Second level 3.58 m x 5.81 m
Bathroom Second level 2.8 m x 3.29 m
Recreational, Games room Basement 5.73 m x 27.3 m
Foyer Main level 4.37 m x 1.7 m
Living room Main level 6.06 m x 4.64 m
Kitchen Main level 3.91 m x 4.04 m
Dining room Main level 3.33 m x 4.04 m
Bathroom Main level 1.51 m x 1.43 m
Found a property your're looking for? Schedule a showing with our team. We're here to answer your questions and help you get a closer look.
John DiRenzo
Sales Representative RE/MAX Centre City John DiRenzo Team Brokerage
Direct Phone: (519) 857-3490
John DiRenzo, Salesperson. Cell: (519) 857-3490. RE/MAX Centre City John DiRenzo Team Brokerage.
Terms Of Use
This website is operated by RE/MAX Centre City John DiRenzo Team Brokerage, a brokerage who is a member of The Canadian Real Estate Association (CREA). The content on this website is owned or controlled by CREA. By accessing this website, the user agrees to be bound by these terms of use as amended from time to time, and agrees that these terms of use constitute a binding contract between the user, RE/MAX Centre City John DiRenzo Team Brokerage, and CREA.
The content on this website is protected by copyright and other laws, and is intended solely for the private, non-commercial use by individuals. Any other reproduction, distribution or use of the content, in whole or in part, is specifically prohibited. Prohibited uses include commercial use, "screen scraping", "database scraping", and any other activity intended to collect, store, reorganize or manipulate the content of this website.
Trademarks:
REALTOR®, REALTORS®, and the REALTOR® logo are certification marks that are owned by REALTOR® Canada Inc. and licensed exclusively to The Canadian Real Estate Association (CREA). These certification marks identify real estate professionals who are members of CREA and who must abide by CREA's By-Laws, Rules, and the REALTOR® Code. The MLS® trademark and the MLS® logo are owned by CREA and identify the professional real estate services provided by members of CREA. The data provided is for informational purposes only and should not be relied upon without verification.