Address: 2210 HIGHWAY 54, Caledonia FOR SALE Subdivision: 064 - Seneca Postal Code: N3W1Y4 Style: Detached 2 Level Type: Single Family House Bedrooms: 5 Bathrooms: 3 Bedrooms Aboveground: 5 Bedrooms Belowground: 0 Parking: Attached Garage Garage: Attached Garage Lot Size: 130 ft x Stories: 2
About 2210 Highway 54
This stunning 5-bedroom, 2.5-bathroom home spans over an energy efficient 3,800+sq/ft and is perfectly positioned to overlook the breathtaking Grand River. Nestled on a generous lot overlooking rolling fields at the back and river access just across the street, it’s an ideal setting for those who love the outdoors. Adding to its appeal, a massive 100’ x 40’ detached shop provides endless possibilities for hobbies, storage, or business use (w/ high speed fibre internet). The main floor boasts a spacious and inviting layout with 9ft ceilings, featuring a custom kitchen with a wood-paneled ceiling, stone countertops, a stylish herringbone backsplash, and a large island—perfect for gathering with family and friends. The adjacent dining room, with its tray ceiling and wood accent wall, offers picturesque views of the Grand River. The oversized great room is a true showstopper, complete with a floor-to-ceiling stone fireplace, vaulted ceiling, and expansive windows that frame stunning views in every direction. Step through one of two patio doors to your private outdoor oasis, featuring a large covered patio and built-in outdoor kitchen, ideal for entertaining. On one elevated side of the home, the primary suite offers a peaceful escape with a walk-in closet and a luxurious ensuite, complete with a custom tile shower. The second level hosts four additional bedrooms and a full 4-piece bathroom. The versatile basement offers even more potential, with its own private entrance from the attached double garage, making it an excellent option for an in-law suite or additional living space. For those needing extra room for vehicles, equipment, or recreational toys, this property delivers! The huge concrete parking area and driveway ensure ample outdoor storage/parking for vehicles/trailers. Don’t miss this rare opportunity to own a spectacular home in a prime location with endless possibilities! Luxury Certified (id:56071). Get more information on 2210 Highway 54
Property Features
Features: Country residential Rental Equipment: None Fireplace Total: 1 Directions: Highway 6 To Highway 54 Zoning Description: HA1 Interior Size: 3824 sqft View: River view Access: Road access Lot: 1/2 - 1.99 acres Exterior Finish: Stone Water: Drilled Well, Well, Septic System Heating / Cooling: Natural gas / Central air conditioning Age: 2016 Foundation: Poured Concrete Constructed Date: 2016 Basement: Full (Unfinished) Unfinished
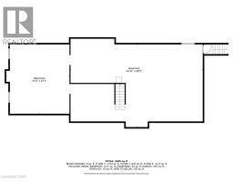
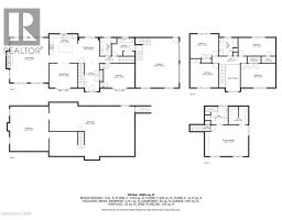
Rooms & Sizes
4pc Bathroom Second level 6 x 9
Bedroom Second level 19 0 x 9 2
Bedroom Second level 12 0 x 15 0
Bedroom Second level 13 0 x 15 0
3pc Bathroom Second level 6 x 9
Primary Bedroom Second level 26 0 x 23 0
Laundry room Main level 9 0 x 12 0
2pc Bathroom Main level 6 x 9
Bedroom Main level 17 0 x 13 6
Dining room Main level 14 8 x 13 5
Kitchen Main level 26 0 x 15 0
Great room Main level 20 2 x 23 4
Found a property your're looking for? Schedule a showing with our team. We're here to answer your questions and help you get a closer look.
John DiRenzo
Sales Representative RE/MAX Centre City John DiRenzo Team Brokerage
Direct Phone: (519) 857-3490
John DiRenzo, Salesperson. Cell: (519) 857-3490. RE/MAX Centre City John DiRenzo Team Brokerage.
Terms Of Use
This website is operated by RE/MAX Centre City John DiRenzo Team Brokerage, a brokerage who is a member of The Canadian Real Estate Association (CREA). The content on this website is owned or controlled by CREA. By accessing this website, the user agrees to be bound by these terms of use as amended from time to time, and agrees that these terms of use constitute a binding contract between the user, RE/MAX Centre City John DiRenzo Team Brokerage, and CREA.
The content on this website is protected by copyright and other laws, and is intended solely for the private, non-commercial use by individuals. Any other reproduction, distribution or use of the content, in whole or in part, is specifically prohibited. Prohibited uses include commercial use, "screen scraping", "database scraping", and any other activity intended to collect, store, reorganize or manipulate the content of this website.
Trademarks:
REALTOR®, REALTORS®, and the REALTOR® logo are certification marks that are owned by REALTOR® Canada Inc. and licensed exclusively to The Canadian Real Estate Association (CREA). These certification marks identify real estate professionals who are members of CREA and who must abide by CREA's By-Laws, Rules, and the REALTOR® Code. The MLS® trademark and the MLS® logo are owned by CREA and identify the professional real estate services provided by members of CREA. The data provided is for informational purposes only and should not be relied upon without verification.