Address: 236 FOXBOROUGH PLACE, Thames Centre (Thorndale) FOR SALE Postal Code: N0M2P0 Style: Detached Bungalow Type: Single Family House Bedrooms: 1 Bathrooms: 2 Bedrooms Aboveground: 1 Parking: Attached Garage Garage: Attached Garage Lot Size: 47 ft ,9 in x 151 ft ,4 in Property Size: 47.8 x 151.4 FT Stories: 1
About 236 Foxborough Place
Discover exceptional value in this TO BE BUILT bungalow located in the growing community of Thorndale. Offering 1,360 sq. ft. of thoughtfully designed living space, this home features a bright and airy open concept layout with seamless flow between the kitchen, living, and dining areasperfect for both everyday living and entertaining. Enjoy up-to-date finishes throughout. The spacious primary suite offers a luxurious 5-piece ensuite and generous walk-in closet, while a separate office or flex room provides a quiet space for work or hobbies. With attractive curb appeal, a welcoming front porch, and smart design, this home is an ideal choice for first-time buyers, downsizers, or investors. Located just minutes from London, with easy access to parks, trails, and local amenities, this property offers the perfect balance of small-town charm and modern convenience. Don t miss your chance to own a brand-new home at an affordable price just minutes from London. Photos are from a previous model for illustrative purposes. (id:56071). Get more information on 236 Foxborough Place
Property Features
Appliances: Garage door opener remote(s) Features: Flat site, Sump Pump Rental Equipment: Fireplace Total: 1 Directions: Cross Streets: Agnes Street. ** Directions: Take Medway Road towards Thorndale (turns into Thorndale Road), make a right onto Fairview, make a right onto Foxborough Place. Zoning Description: R1-16 Interior Size: 1100 - 1500 sqft Amenities: Fireplace(s) Lot: 47.8 x 151.4 FT|under 1/2 acre 47.8 x 151.4 FT Exterior Finish: Stucco, Stone Water: Municipal water, Sanitary sewer Heating / Cooling: Natural gas / Central air conditioning Age: New building Foundation: Poured Concrete Basement: N/A (Unfinished) Unfinished
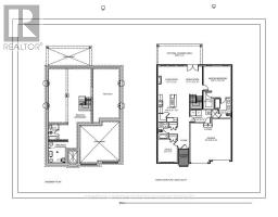
Rooms & Sizes
Office Main level 2.83 m x 3.35 m
Bathroom Main level 2.43 m x 1.52 m
Kitchen Main level 4.14 m x 2.95 m
Living room Main level 3.99 m x 3.96 m
Dining room Main level 3.99 m x 2.46 m
Primary Bedroom Main level 4.75 m x 4.14 m
Bathroom Main level 3 m x 2.43 m
Laundry room Main level 3.2 m x 1.88 m
Found a property your're looking for? Schedule a showing with our team. We're here to answer your questions and help you get a closer look.
John DiRenzo
Sales Representative RE/MAX Centre City John DiRenzo Team Brokerage
Direct Phone: (519) 857-3490
John DiRenzo, Salesperson. Cell: (519) 857-3490. RE/MAX Centre City John DiRenzo Team Brokerage.
Terms Of Use
This website is operated by RE/MAX Centre City John DiRenzo Team Brokerage, a brokerage who is a member of The Canadian Real Estate Association (CREA). The content on this website is owned or controlled by CREA. By accessing this website, the user agrees to be bound by these terms of use as amended from time to time, and agrees that these terms of use constitute a binding contract between the user, RE/MAX Centre City John DiRenzo Team Brokerage, and CREA.
The content on this website is protected by copyright and other laws, and is intended solely for the private, non-commercial use by individuals. Any other reproduction, distribution or use of the content, in whole or in part, is specifically prohibited. Prohibited uses include commercial use, "screen scraping", "database scraping", and any other activity intended to collect, store, reorganize or manipulate the content of this website.
Trademarks:
REALTOR®, REALTORS®, and the REALTOR® logo are certification marks that are owned by REALTOR® Canada Inc. and licensed exclusively to The Canadian Real Estate Association (CREA). These certification marks identify real estate professionals who are members of CREA and who must abide by CREA's By-Laws, Rules, and the REALTOR® Code. The MLS® trademark and the MLS® logo are owned by CREA and identify the professional real estate services provided by members of CREA. The data provided is for informational purposes only and should not be relied upon without verification.