Address: 24 GOWER STREET, London North (North N) FOR SALE Postal Code: N6H2E6 Style: Detached Bungalow Type: Single Family House Bedrooms: 5 Bathrooms: 3 Bedrooms Aboveground: 3 Bedrooms Belowground: 2 Parking: Detached Garage Garage: Detached Garage Lot Size: 40 ft ,1 in x 115 ft ,4 in Property Size: 40.1 x 115.4 FT Stories: 1
About 24 Gower Street
Welcome to 24 Gower St. a beautifully updated 5-bedroom, 3-bathroom bungalow in a prime London location close to Western University and major bus routes. The bright main level offers an open-concept feel with modern finishes throughout, including a crisp kitchen with a large island, contemporary lighting, and stylish black hardware. Downstairs, a second kitchenette and additional living space create serious flexibility for multi-generational living or income potential. With three separate entrances, this home is well set up for those looking to expand an investment portfolio while still offering comfortable space for end users. Outside, you ll love the detached double car garage and ample parking. Clean curb appeal, modern interior updates, and a layout designed for options. (id:56071). Get more information on 24 Gower Street
Property Features
Appliances: Water Heater - Tankless, Water Heater, Water meter, Dishwasher, Microwave, Hood Fan, Stove, Two Refrigerators Features: In-Law Suite Rental Equipment: None Fireplace Total: 1 Directions: Cross Streets: Oxford St and Gower. ** Directions: Heading west on Oxford St turn right on Gower home is on the left hand side. Zoning Description: R2-2 Interior Size: 700 - 1100 sqft Amenities: Fireplace(s) Lot: 40.1 x 115.4 FT 40.1 x 115.4 FT Exterior Finish: Brick Water: Municipal water, Sanitary sewer Heating / Cooling: Natural gas / Central air conditioning Age: 51 to 99 years Foundation: Poured Concrete Basement: N/A, N/A (Finished) Finished
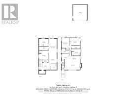
Rooms & Sizes
Bedroom 5 Lower level 3.53 m x 3.28 m
Utility room Lower level 2.26 m x 2.34 m
Laundry room Lower level 2.29 m x 1.17 m
Recreational, Games room Lower level 3.33 m x 6.48 m
Kitchen Lower level 3.33 m x 3.3 m
Bedroom 4 Lower level 3.53 m x 2.97 m
Foyer Main level 1.24 m x 0.94 m
Living room Main level 6.38 m x 3.48 m
Dining room Main level 4.29 m x 2.31 m
Kitchen Main level 2.87 m x 2.97 m
Primary Bedroom Main level 2.87 m x 3.89 m
Bedroom 2 Main level 4.14 m x 2.84 m
Bedroom 3 Main level 3.18 m x 2.59 m
Found a property your're looking for? Schedule a showing with our team. We're here to answer your questions and help you get a closer look.
John DiRenzo
Sales Representative RE/MAX Centre City John DiRenzo Team Brokerage
Direct Phone: (519) 857-3490
John DiRenzo, Salesperson. Cell: (519) 857-3490. RE/MAX Centre City John DiRenzo Team Brokerage.
Terms Of Use
This website is operated by RE/MAX Centre City John DiRenzo Team Brokerage, a brokerage who is a member of The Canadian Real Estate Association (CREA). The content on this website is owned or controlled by CREA. By accessing this website, the user agrees to be bound by these terms of use as amended from time to time, and agrees that these terms of use constitute a binding contract between the user, RE/MAX Centre City John DiRenzo Team Brokerage, and CREA.
The content on this website is protected by copyright and other laws, and is intended solely for the private, non-commercial use by individuals. Any other reproduction, distribution or use of the content, in whole or in part, is specifically prohibited. Prohibited uses include commercial use, "screen scraping", "database scraping", and any other activity intended to collect, store, reorganize or manipulate the content of this website.
Trademarks:
REALTOR®, REALTORS®, and the REALTOR® logo are certification marks that are owned by REALTOR® Canada Inc. and licensed exclusively to The Canadian Real Estate Association (CREA). These certification marks identify real estate professionals who are members of CREA and who must abide by CREA's By-Laws, Rules, and the REALTOR® Code. The MLS® trademark and the MLS® logo are owned by CREA and identify the professional real estate services provided by members of CREA. The data provided is for informational purposes only and should not be relied upon without verification.