Address: 2416 SUNNINGDALE ROAD W, Middlesex Centre FOR SALE Postal Code: N6H5L2 Style: Detached Type: Single Family House Bedrooms: 4 Bathrooms: 4 Bedrooms Aboveground: 4 Parking: Attached Garage Garage: Attached Garage Lot Size: 350 ft x 350 ft Property Size: 350 x 350 FT Stories: 2
About 2416 Sunningdale Road W
Discover the perfect balance of space, privacy, and convenience with this exceptional country estate situated just steps outside London s city limits. Set on nearly 3 acres of beautifully expansive land, this rare offering provides the tranquility of rural living without sacrificing access to amenities. Your country retreat features over 3,300 square feet of above-grade living space, carefully designed to suit both comfortable living and elegant entertaining. Every room in this home is welcoming, spacious, and filled with natural light. Complemented by picturesque views in all directions that create a warm and inviting atmosphere throughout. The main floor features the primary bedroom, 1.5 bathrooms, a spacious eat-in kitchen, a dining area, a den/bedroom, and a formal living space, enhanced by a versatile room currently used as an office. Upstairs, a private retreat awaits, with two large bedrooms, another full bathroom, and a sitting area. Downstairs, a spacious family room is perfect for movie nights or entertaining. An additional bathroom and laundry room are included, with the potential to add one or two more bedrooms and plenty of storage space. A key feature of this property is the spacious 2,700-square-foot workshop, offering a great opportunity for hobbyists, entrepreneurs, or anyone needing versatile space. Whether you envision a home-based business, vehicle storage, or the ultimate workshop-don t miss this chance. They don t come around often! Surrounded by open skies and mature landscaping, this property is a peaceful sanctuary where wildlife thrives among the ponds, trees and fields surrounding. This property is a peaceful escape from city life stress, yet it remains just minutes from shopping, dining, and schools. It offers a rare chance to enjoy the best of both worlds: peaceful country living with all the conveniences of London nearby. This is more than a home; it s a lifestyle. Experience the space, freedom, and potential you ve been waiting for. (id:56071). Get more information on 2416 Sunningdale Road W
Property Features
Appliances: Hot Tub, Garage door opener remote(s), Oven - Built-In, Central Vacuum, Range, Water Heater, Water softener, Dryer, Freezer, Furniture, Washer Features: Gazebo, Sump Pump Landscape: Landscaped Rental Equipment: None Directions: Cross Streets: Denfield Road. ** Directions: Take Sunningdale Rd W to just past Denfield and it s on the North side of Sunningdale. Zoning Description: AR Interior Size: 3000 - 3500 sqft Community Features: School Bus Amenities: Fireplace(s) Access: Public Road, Year-round access Lot: 350 x 350 FT|2 - 4.99 acres 350 x 350 FT Exterior Finish: Wood, Stone Water: Drilled Well, Septic System Heating / Cooling: Propane / Central air conditioning Age: 51 to 99 years Foundation: Poured Concrete Basement: Full (Finished) Finished
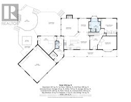
Rooms & Sizes
Bedroom Second level 6.24 m x 6.11 m
Bedroom Second level 4.85 m x 6.11 m
Laundry room Basement 4.06 m x 3.72 m
Recreational, Games room Basement 7.76 m x 8.57 m
Primary Bedroom Main level 4.36 m x 4 m
Kitchen Main level 3.88 m x 3.63 m
Eating area Main level 3.23 m x 4.85 m
Dining room Main level 3.37 m x 3.72 m
Family room Main level 4.63 m x 4.83 m
Office Main level 5.17 m x 5.2 m
Found a property your're looking for? Schedule a showing with our team. We're here to answer your questions and help you get a closer look.
John DiRenzo
Sales Representative RE/MAX Centre City John DiRenzo Team Brokerage
Direct Phone: (519) 857-3490
John DiRenzo, Salesperson. Cell: (519) 857-3490. RE/MAX Centre City John DiRenzo Team Brokerage.
Terms Of Use
This website is operated by RE/MAX Centre City John DiRenzo Team Brokerage, a brokerage who is a member of The Canadian Real Estate Association (CREA). The content on this website is owned or controlled by CREA. By accessing this website, the user agrees to be bound by these terms of use as amended from time to time, and agrees that these terms of use constitute a binding contract between the user, RE/MAX Centre City John DiRenzo Team Brokerage, and CREA.
The content on this website is protected by copyright and other laws, and is intended solely for the private, non-commercial use by individuals. Any other reproduction, distribution or use of the content, in whole or in part, is specifically prohibited. Prohibited uses include commercial use, "screen scraping", "database scraping", and any other activity intended to collect, store, reorganize or manipulate the content of this website.
Trademarks:
REALTOR®, REALTORS®, and the REALTOR® logo are certification marks that are owned by REALTOR® Canada Inc. and licensed exclusively to The Canadian Real Estate Association (CREA). These certification marks identify real estate professionals who are members of CREA and who must abide by CREA's By-Laws, Rules, and the REALTOR® Code. The MLS® trademark and the MLS® logo are owned by CREA and identify the professional real estate services provided by members of CREA. The data provided is for informational purposes only and should not be relied upon without verification.