Address: 288 WINDERMERE COURT W, London North (North A) FOR SALE Postal Code: N6G4J5 Style: Detached Bungalow Type: Single Family House Bedrooms: 4 Bathrooms: 4 Bedrooms Aboveground: 3 Bedrooms Belowground: 1 Parking: Attached Garage Garage: Attached Garage Lot Size: 100 ft ,1 in x 150 ft ,9 in Property Size: 100.1 x 150.8 FT Stories: 1
About 288 Windermere Court W
Set back on a 100-ft-wide, 0.40 acre lot along coveted Windermere Court West-an exclusive, traffic-calmed lane with homes on only one side overlooking the Elsie Perrin Estate-this fully transformed modern residence delivers 3,177 sq ft above grade and a seductive gallery-style aesthetic. The road is curbed, dead-ended, and services only the resident homes, enhancing peace and privacy. With Western University, University Hospital, and Medway Valley trails in walking distance, the setting is unmatched for buyers who value location. Inside, the main level flows with curated, art-gallery intention: newer windows and doors frame natural light, continuous flooring extends sight-lines, and a sculptural quartz fireplace surround and feature wall creates impact defining the stepped-down living room. The architectural kitchen performs as both workspace and showpiece, offering dual islands, extensive cabinetry, a porcelain/quartz feature wall, and a walk-in pantry. A generous dining area, sunroom/office, impressive main bath, and three bedrooms - including a bold, light-filled primary suite with a beautifully redesigned ensuite-complete the main level. The lower level expands the home s lifestyle narrative with nearly 2,000 sq ft of upscale finished space. Glass partitions showcase a double laundry suite, a glassed-in gym, and a glass-front bonus room ideal for a future wine cellar, adding a boutique-hotel sensibility. A large workout studio, lounge, games area, full bath, finished bonus room, and a private bedroom complete the level. Outside, the deep, fully fenced yard evolves into a private resort: heated salt-water sport-pool, hot tub, and a pool house that flows into a covered lanai-creating effortless outdoor living whether you want shade, shelter from rain, or a serene retreat after a workout. Redesigned front landscaping and lift-height garage ceilings complete this modern sanctuary. Windermere Court West is a rare address-and this is one of its most compelling homes. (id:56071). Get more information on 288 Windermere Court W
Property Features
Appliances: Water Heater - Tankless, Oven - Built-In, Dryer, Microwave, Stove, Two Washers, Refrigerator Features: Irregular lot size Rental Equipment: Furnace Fireplace Total: 2 Pool Type: Inground pool Directions: Cross Streets: Windermere Road. ** Directions: Windermere Rd headed west past Western Rd turn Right onto Corley Drive, Left on Windermere Court W. Zoning Description: R1-9 Interior Size: 3000 - 3500 sqft Amenities: Fireplace(s) Lot: 100.1 x 150.8 FT 100.1 x 150.8 FT Exterior Finish: Brick Water: Municipal water, Sanitary sewer Heating / Cooling: Natural gas / Central air conditioning Age: Foundation: Poured Concrete Basement: Full (Finished) Finished
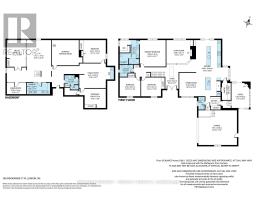
Rooms & Sizes
Recreational, Games room Lower level 3.74 m x 5.25 m
Games room Lower level 3.76 m x 2.16 m
Laundry room Lower level 4.43 m x 2.24 m
Other Lower level 5.08 m x 3.73 m
Family room Lower level 6.61 m x 4.74 m
Other Lower level 4.8 m x 5.14 m
Foyer Main level 2.6 m x 3.22 m
Dining room Main level 3.3 m x 4.49 m
Living room Main level 4.58 m x 5.31 m
Kitchen Main level 4.66 m x 10.83 m
Pantry Main level 1.67 m x 3.26 m
Mud room Main level 2.9 m x 1.78 m
Bedroom Main level 4.03 m x 3.61 m
Bedroom 2 Main level 3.77 m x 3.61 m
Primary Bedroom Main level 5 m x 5.16 m
Bedroom 4 Other 4.44 m x 4.33 m
Found a property your're looking for? Schedule a showing with our team. We're here to answer your questions and help you get a closer look.
John DiRenzo
Sales Representative RE/MAX Centre City John DiRenzo Team Brokerage
Direct Phone: (519) 857-3490
John DiRenzo, Salesperson. Cell: (519) 857-3490. RE/MAX Centre City John DiRenzo Team Brokerage.
Terms Of Use
This website is operated by RE/MAX Centre City John DiRenzo Team Brokerage, a brokerage who is a member of The Canadian Real Estate Association (CREA). The content on this website is owned or controlled by CREA. By accessing this website, the user agrees to be bound by these terms of use as amended from time to time, and agrees that these terms of use constitute a binding contract between the user, RE/MAX Centre City John DiRenzo Team Brokerage, and CREA.
The content on this website is protected by copyright and other laws, and is intended solely for the private, non-commercial use by individuals. Any other reproduction, distribution or use of the content, in whole or in part, is specifically prohibited. Prohibited uses include commercial use, "screen scraping", "database scraping", and any other activity intended to collect, store, reorganize or manipulate the content of this website.
Trademarks:
REALTOR®, REALTORS®, and the REALTOR® logo are certification marks that are owned by REALTOR® Canada Inc. and licensed exclusively to The Canadian Real Estate Association (CREA). These certification marks identify real estate professionals who are members of CREA and who must abide by CREA's By-Laws, Rules, and the REALTOR® Code. The MLS® trademark and the MLS® logo are owned by CREA and identify the professional real estate services provided by members of CREA. The data provided is for informational purposes only and should not be relied upon without verification.