Address: 292321 CULLODEN LINE, South-West Oxford FOR SALE Postal Code: N0L1C0 Style: Detached Bungalow Type: Single Family House Bedrooms: 5 Bathrooms: 3 Bedrooms Aboveground: 3 Bedrooms Belowground: 2 Parking: Attached Garage Garage: Attached Garage Lot Size: 127 ft x 200 ft Property Size: 127 x 200 FT Stories: 1
About 292321 Culloden Line
Newly available after an extended conditional period. Escape the subdivision and come home to space, privacy, and flexibility. Set on a beautifully treed 0.58-acre lot, this impeccably maintained home offers over 3,800 sq. ft. of finished living space - ideal for growing families, multigenerational living, or those who simply want room to breathe. The main floor features three spacious bedrooms, including a private primary retreat with walk-in closet and ensuite, all accented by hickory hardwood flooring and oversized windows that flood the home with natural light. The heart of the home is a custom cherry wood kitchen, seamlessly connected to open living and dining spaces designed for both everyday comfort and effortless entertaining. Two fireplaces - one gas and one wood-burning - add warmth and character throughout the seasons. The fully finished lower level offers two additional bedrooms and a separate entrance, creating excellent potential for an in-law suite, multigenerational setup, or private guest space. Outside, the property truly shines with an oversized 2.5-car garage, an expansive driveway accommodating 12+ vehicles, and mature landscaping that delivers a private oasis. All of this is just 15 minutes to Highway 401, offering the perfect balance of peaceful living and commuter convenience. (id:56071). Get more information on 292321 Culloden Line
Property Features
Appliances: Dishwasher, Dryer, Microwave, Range, Washer, Refrigerator Rental Equipment: Fireplace Total: 2 Directions: Cross Streets: Brownsville Rd. ** Directions: Simcoe St to Baldwin St, Left on Quarter Town Line, Right onto Culloden Line, Approx. 3.5 Km. Zoning Description: R1 Interior Size: 1500 - 2000 sqft Amenities: Fireplace(s) Lot: 127 x 200 FT|50 - 100 acres 127 x 200 FT Exterior Finish: Brick Water: Municipal water, Septic System Heating / Cooling: Natural gas / Central air conditioning Age: 51 to 99 years Foundation: Poured Concrete Basement: N/A, N/A (Finished) Finished
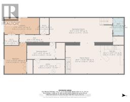
Rooms & Sizes
Family room Basement 5.47 m x 4.82 m
Bedroom 4 Basement 5.41 m x 2.53 m
Bedroom 5 Basement 3.42 m x 4.82 m
Exercise room Basement 4.45 m x 2.54 m
Bathroom Basement 1.67 m x 2.77 m
Utility room Basement 4.92 m x 2.18 m
Recreational, Games room Basement 9.82 m x 3.77 m
Sitting room Basement 3.63 m x 4.39 m
Living room Main level 9.69 m x 4.78 m
Dining room Main level 2.51 m x 4.36 m
Kitchen Main level 7.19 m x 4.35 m
Primary Bedroom Main level 4.13 m x 4.26 m
Bedroom 2 Main level 3.96 m x 3.5 m
Bedroom 3 Main level 4.66 m x 3.5 m
Bathroom Main level 5.17 m x 3.33 m
Bathroom Main level 2.81 m x 2.52 m
Found a property your're looking for? Schedule a showing with our team. We're here to answer your questions and help you get a closer look.
John DiRenzo
Sales Representative RE/MAX Centre City John DiRenzo Team Brokerage
Direct Phone: (519) 857-3490
John DiRenzo, Salesperson. Cell: (519) 857-3490. RE/MAX Centre City John DiRenzo Team Brokerage.
Terms Of Use
This website is operated by RE/MAX Centre City John DiRenzo Team Brokerage, a brokerage who is a member of The Canadian Real Estate Association (CREA). The content on this website is owned or controlled by CREA. By accessing this website, the user agrees to be bound by these terms of use as amended from time to time, and agrees that these terms of use constitute a binding contract between the user, RE/MAX Centre City John DiRenzo Team Brokerage, and CREA.
The content on this website is protected by copyright and other laws, and is intended solely for the private, non-commercial use by individuals. Any other reproduction, distribution or use of the content, in whole or in part, is specifically prohibited. Prohibited uses include commercial use, "screen scraping", "database scraping", and any other activity intended to collect, store, reorganize or manipulate the content of this website.
Trademarks:
REALTOR®, REALTORS®, and the REALTOR® logo are certification marks that are owned by REALTOR® Canada Inc. and licensed exclusively to The Canadian Real Estate Association (CREA). These certification marks identify real estate professionals who are members of CREA and who must abide by CREA's By-Laws, Rules, and the REALTOR® Code. The MLS® trademark and the MLS® logo are owned by CREA and identify the professional real estate services provided by members of CREA. The data provided is for informational purposes only and should not be relied upon without verification.