Brokered by: OLIVER & ASSOCIATES SARAH OLIVER REAL ESTATE BROKERAGE
MLS®: X12971084 (Freehold)
Price: $725,000.00
Address: 30 SANDALWOOD CRESCENT, London North (North F) FOR SALE Postal Code: N6G2Z7 Style: Detached Bungalow Type: Single Family House Bedrooms: 4 Bathrooms: 3 Bedrooms Aboveground: 2 Bedrooms Belowground: 2 Parking: Attached Garage Garage: Attached Garage Lot Size: 50 ft ,1 in x 105 ft ,7 in Property Size: 50.1 x 105.6 FT Stories: 1
About 30 Sandalwood Crescent
Welcome to 30 Sandalwood Crescent, a spacious and extensively updated 4-bedroom, 3 full bathroom home offering exceptional versatility for a wide range of buyers. Featuring two main floor family rooms and an open-concept kitchen and dining area, this home is designed for comfortable everyday living and effortless entertaining. A dedicated home office with a separate entrance and main floor laundry add to the home s convenience and functionality. The main floor is enhanced with in-floor heating throughout, while the fully finished basement offers a self-contained in-law suite-perfect for extended family, first-time buyers seeking mortgage support, or savvy investors. The lower level also features custom built-ins, its own kitchen, laundry, and an updated bathroom. Step outside to your private backyard retreat with composite decking , a relaxing swim spa, natural gas lines for a barbeque and fire table, ideal for year-round enjoyment. A heated single-car garage, and a large storage shed provide added convenience and practicality. Ideal for families, 1st time home buyers, or as a condo alternative or for those looking to downsize without sacrificing space, this home is truly larger than it appears. Conveniently located close to schools, shopping, parks, and restaurants, it offers the perfect blend of lifestyle and location. Reach out to your agent or myself for a complete list of features! You will not want to miss out on seeing this incredible home. (id:56071). Get more information on 30 Sandalwood Crescent
Property Features
Appliances: Water meter, Dishwasher, Dryer, Water Heater, Microwave, Oven, Stove, Washer, Water Treatment, Refrigerator Features: Cul-de-sac, Flat site, In-Law Suite Landscape: Landscaped Rental Equipment: None Directions: Cross Streets: Aldersbrook and Hawthorne. ** Directions: Head East from Aldersbrook on Hawthorne, to Sandalwood Crecent. Zoning Description: R1-6 Interior Size: 1500 - 2000 sqft Fence: Fully Fenced, Fenced yard Community Features: Community Centre Lot: 50.1 x 105.6 FT|under 1/2 acre 50.1 x 105.6 FT Exterior Finish: Brick, Vinyl siding Flooring: Hardwood Water: Municipal water, Sanitary sewer Heating / Cooling: Natural gas / Central air conditioning Age: 31 to 50 years Foundation: Poured Concrete Basement: Full (Finished) Finished
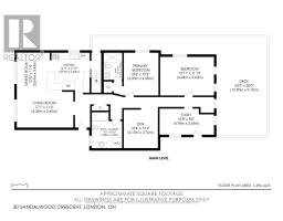
Rooms & Sizes
Kitchen Basement 1.84 m x 2.8 m
Bedroom 3 Basement 3.63 m x 3.33 m
Bedroom 4 Basement 3.33 m x 2.88 m
Bathroom Basement 3.2 m x 2.64 m
Utility room Basement 4.96 m x 2.52 m
Family room Basement 6.58 m x 4.46 m
Living room Main level 5.2 m x 3.45 m
Foyer Main level 3.19 m x 1.76 m
Kitchen Main level 3.94 m x 3.6 m
Dining room Main level 3.04 m x 3.45 m
Family room Main level 3.75 m x 3.15 m
Office Main level 4.78 m x 2.43 m
Primary Bedroom Main level 4.08 m x 3.2 m
Bedroom 2 Main level 4.24 m x 3.6 m
Bathroom Main level 2.54 m x 1.67 m
Bathroom Main level 3.3 m x 2.88 m
Found a property your're looking for? Schedule a showing with our team. We're here to answer your questions and help you get a closer look.
John DiRenzo
Sales Representative RE/MAX Centre City John DiRenzo Team Brokerage
Direct Phone: (519) 857-3490
John DiRenzo, Salesperson. Cell: (519) 857-3490. RE/MAX Centre City John DiRenzo Team Brokerage.
Terms Of Use
This website is operated by RE/MAX Centre City John DiRenzo Team Brokerage, a brokerage who is a member of The Canadian Real Estate Association (CREA). The content on this website is owned or controlled by CREA. By accessing this website, the user agrees to be bound by these terms of use as amended from time to time, and agrees that these terms of use constitute a binding contract between the user, RE/MAX Centre City John DiRenzo Team Brokerage, and CREA.
The content on this website is protected by copyright and other laws, and is intended solely for the private, non-commercial use by individuals. Any other reproduction, distribution or use of the content, in whole or in part, is specifically prohibited. Prohibited uses include commercial use, "screen scraping", "database scraping", and any other activity intended to collect, store, reorganize or manipulate the content of this website.
Trademarks:
REALTOR®, REALTORS®, and the REALTOR® logo are certification marks that are owned by REALTOR® Canada Inc. and licensed exclusively to The Canadian Real Estate Association (CREA). These certification marks identify real estate professionals who are members of CREA and who must abide by CREA's By-Laws, Rules, and the REALTOR® Code. The MLS® trademark and the MLS® logo are owned by CREA and identify the professional real estate services provided by members of CREA. The data provided is for informational purposes only and should not be relied upon without verification.