Address: 30 SERVICEBERRY Lane UnitNo. 34, Simcoe FOR SALE Subdivision: Town of Simcoe Postal Code: N3Y0E7 Style: Attached Bungalow Type: Single Family Row / Townhouse Maint/Condo. Fee: 0.00 Bedrooms: 2 Bathrooms: 4 Bedrooms Aboveground: 2 Bedrooms Belowground: 0 Parking: Attached Garage Garage: Attached Garage Lot Size: 28 ft x Stories: 1
About 30 Serviceberry Lane Unitno. 34
Gorgeous 2 bedroom brick bungalow in a quiet neighbourhood! Pull in to the double wide private driveway leading to the manicured front yard and cozy covered front porch. Step indoors to the spacious foyer with closet for coats and shoes. Next is a powder room located just before the stunning eat-in kitchen. White cupboards, quartz countertops, stainless steel appliances, an island with sink and a pantry make this kitchen a dream to cook and entertain in! The kitchen is open to the living room with gas fireplace and patio door to the backyard. Next is the primary bedroom with walk-in closet and beautiful 4 piece ensuite with walk-in shower and double sinks. Finishing off the main floor is the laundry room with door to the garage. Upstairs is a sitting room with a bird s eye view of the lower level. Also up here is the second bedroom with walk-in closet and the 4 piece bathroom. Downstairs, enjoy a secondary retreat in the recreation room with space to relax, read or watch T.V. An office space with door to the 3 piece bathroom could be converted into a third bedroom. The storage and utility room provide space for all those extras in life. Outdoors, the sweet patio is perfect for barbecuing or enjoying the sunshine. The attached 2 car garage completes this property with space to keep your car dry. Located in a quiet area not far from schools, shopping and the hospital this home is sure to please! (id:56071). Get more information on 30 Serviceberry Lane Unitno. 34
Property Features
Appliances: Dryer, Microwave, Refrigerator, Stove, Water softener, Washer Features: Automatic Garage Door Opener Rental Equipment: Water Heater Fireplace Total: 1 Directions: From West St go south on Holden Ave, turn east on Thomson Road, follow Thomson to Fernwood Drive. Go south on Fernwood Drive and then west on Serviceberry property is on north side of Serviceberry Lane. Zoning Description: R4 Interior Size: 2029 sqft Community Features: Quiet Area Fixture: Ceiling fans Lot: under 1/2 acre Exterior Finish: Brick Veneer, Stone Water: Municipal water, Municipal sewage system Heating / Cooling: Natural gas / Central air conditioning Age: 2020 Foundation: Poured Concrete Constructed Date: 2020 Basement: Full (Finished) Finished
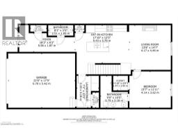
Rooms & Sizes
4pc Bathroom Second level 5 1 x 7 2
Bedroom Second level 10 2 x 10 7
Sitting room Second level 14 7 x 12 5
3pc Bathroom Basement 7 4 x 10 0
Office Basement 12 2 x 9 9
Recreation room Basement 22 9 x 16 0
Laundry room Main level 7 4 x 10 5
Full bathroom Main level 9 0 x 10 5
Primary Bedroom Main level 13 7 x 11 11
Living room Main level 13 8 x 14 7
Eat in kitchen Main level 17 10 x 12 5
2pc Bathroom Main level 8 3 x 3 5
Foyer Main level 18 3 x 6 2
Found a property your're looking for? Schedule a showing with our team. We're here to answer your questions and help you get a closer look.
John DiRenzo
Sales Representative RE/MAX Centre City John DiRenzo Team Brokerage
Direct Phone: (519) 857-3490
John DiRenzo, Salesperson. Cell: (519) 857-3490. RE/MAX Centre City John DiRenzo Team Brokerage.
Terms Of Use
This website is operated by RE/MAX Centre City John DiRenzo Team Brokerage, a brokerage who is a member of The Canadian Real Estate Association (CREA). The content on this website is owned or controlled by CREA. By accessing this website, the user agrees to be bound by these terms of use as amended from time to time, and agrees that these terms of use constitute a binding contract between the user, RE/MAX Centre City John DiRenzo Team Brokerage, and CREA.
The content on this website is protected by copyright and other laws, and is intended solely for the private, non-commercial use by individuals. Any other reproduction, distribution or use of the content, in whole or in part, is specifically prohibited. Prohibited uses include commercial use, "screen scraping", "database scraping", and any other activity intended to collect, store, reorganize or manipulate the content of this website.
Trademarks:
REALTOR®, REALTORS®, and the REALTOR® logo are certification marks that are owned by REALTOR® Canada Inc. and licensed exclusively to The Canadian Real Estate Association (CREA). These certification marks identify real estate professionals who are members of CREA and who must abide by CREA's By-Laws, Rules, and the REALTOR® Code. The MLS® trademark and the MLS® logo are owned by CREA and identify the professional real estate services provided by members of CREA. The data provided is for informational purposes only and should not be relied upon without verification.