Address: 301 HASTINGS STREET, North Middlesex (Parkhill) FOR SALE Postal Code: N0M2K0 Style: Detached Type: Single Family House Bedrooms: 3 Bathrooms: 3 Bedrooms Aboveground: 3 Bedrooms Belowground: 0 Parking: Attached Garage Garage: Attached Garage Lot Size: x Property Size: 80 x 102 Acre Stories: 2
About 301 Hastings Street
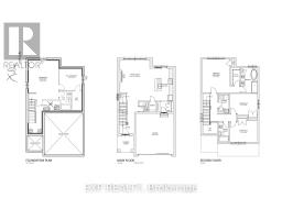
Welcome to the Xclaim, a beautifully crafted two-storey home designed for modern living and everyday comfort. This 3-bedroom layout offers thoughtful features throughout, starting with a bright, open-concept main floor that brings everyone together. The kitchen overlooks the living space and includes an island with a sink, a full wall of counter space with room for your fridge and stove, and a generous walk-in pantry-everything you need to cook, gather, and stay organized. Upstairs, you ll find 3 bedrooms and two full bathrooms, including a stunning 5-piece ensuite in the primary suite with a double vanity, walk-in shower, and stand-alone tub. The primary bedroom also features a spacious walk-in closet, while the second full bath serves the additional two bedrooms. A mudroom off the double-car garage adds convenience to your daily routine, and the covered front porch offers a warm welcome home. With a selection of lots still available-including options backing onto a peaceful ravine in this quiet court-there s still time to choose the perfect setting for your next build. (id:56071). Get more information on 301 Hastings Street
Property Features
Features: Cul-de-sac, Irregular lot size, Sump Pump Rental Equipment: Water Heater Fireplace Total: 1 Directions: Cross Streets: EAGLE STREET. ** Directions: Turn right onto Anna St, Turn right onto Eagle St, turn left onto Hastings, property will be on the right. Zoning Description: R1 Interior Size: 1500 - 2000 sqft Amenities: Fireplace(s) Lot: 80 x 102 Acre 80 x 102 Acre Exterior Finish: Brick, Vinyl siding Water: Municipal water, Sanitary sewer Heating / Cooling: Natural gas / Central air conditioning Age: New building Foundation: Poured Concrete Basement: Full (Unfinished) Unfinished
Rooms & Sizes
Primary Bedroom Second level 4.06 m x 4.9 m
Bedroom 2 Second level 4.06 m x 3.15 m
Bedroom 3 Second level 4.06 m x 3.15 m
Laundry room Second level 1.52 m x 2.87 m
Bathroom Second level 1.52 m x 2.87 m
Great room Main level 4.39 m x 4.09 m
Kitchen Main level 3.35 m x 4.8 m
Bathroom Main level 1.5 m x 1.5 m
Found a property your're looking for? Schedule a showing with our team. We're here to answer your questions and help you get a closer look.
John DiRenzo
Sales Representative RE/MAX Centre City John DiRenzo Team Brokerage
Direct Phone: (519) 857-3490
John DiRenzo, Salesperson. Cell: (519) 857-3490. RE/MAX Centre City John DiRenzo Team Brokerage.
Terms Of Use
This website is operated by RE/MAX Centre City John DiRenzo Team Brokerage, a brokerage who is a member of The Canadian Real Estate Association (CREA). The content on this website is owned or controlled by CREA. By accessing this website, the user agrees to be bound by these terms of use as amended from time to time, and agrees that these terms of use constitute a binding contract between the user, RE/MAX Centre City John DiRenzo Team Brokerage, and CREA.
The content on this website is protected by copyright and other laws, and is intended solely for the private, non-commercial use by individuals. Any other reproduction, distribution or use of the content, in whole or in part, is specifically prohibited. Prohibited uses include commercial use, "screen scraping", "database scraping", and any other activity intended to collect, store, reorganize or manipulate the content of this website.
Trademarks:
REALTOR®, REALTORS®, and the REALTOR® logo are certification marks that are owned by REALTOR® Canada Inc. and licensed exclusively to The Canadian Real Estate Association (CREA). These certification marks identify real estate professionals who are members of CREA and who must abide by CREA's By-Laws, Rules, and the REALTOR® Code. The MLS® trademark and the MLS® logo are owned by CREA and identify the professional real estate services provided by members of CREA. The data provided is for informational purposes only and should not be relied upon without verification.