Address: 31 CHAPEL Street, Vienna FOR SALE Subdivision: Vienna Postal Code: N0J1Z0 Style: Detached 2 Level Type: Single Family House Bedrooms: 4 Bathrooms: 3 Bedrooms Aboveground: 3 Bedrooms Belowground: 1 Parking: Attached Garage Garage: Attached Garage Lot Size: 300 ft x 277 ft Property Size: 1.75 Stories: 2
About 31 Chapel Street
Experience the pinnacle of luxurious living at 31 Chapel Street, a stunning two-story Muskoka-inspired home nestled in the charming community of Vienna. Offering 2,349 square feet of beautifully designed living space, this exceptional residence blends refined elegance with nearly two acres of pristine land along the peaceful Otter River. From the moment you enter, a spacious foyer welcomes you into an impressive open-concept main floor. The gourmet kitchen is appointed with striking granite countertops and complemented by rich hardwood flooring that adds warmth and sophistication throughout. The grand great room is the centerpiece of the home, highlighted by a dramatic two-story stone fireplace and captivating sightlines to the second-floor mezzanine. Expansive walk-out patio doors create a seamless connection to the picturesque rear yard, making this home ideal for entertaining. The main level also features a sun-filled dining room framed by windows, as well as an oversized bedroom complete with a luxurious three-piece ensuite. Upstairs, the beautiful mezzanine overlooks the great room and opens onto a tranquil balcony, perfect for taking in the scenic surroundings. This level also offers a spacious guest bedroom and an elegant primary suite with a private four-piece ensuite finished in exquisite marble. The professionally landscaped grounds capture a true Muskoka ambiance, showcasing river views, mature trees, and abundant wildlife. A two-story deck with a relaxing hot tub provides the perfect outdoor retreat. The thoughtfully finished lower level adds versatility with upgraded cork flooring, a fourth bedroom, cold room, utility room, and an additional three-piece bathroom, along with convenient garage access. This extraordinary property offers a rare blend of luxury, comfort, and peaceful living, inviting you to enjoy a lifestyle immersed in nature. 31 Chapel Street is more than a home; it is a private sanctuary of timeless elegance. (id:56071). Get more information on 31 Chapel Street
Property Features
Appliances: Dishwasher, Dryer, Refrigerator, Washer, Microwave Built-in, Gas stove(s), Hood Fan, Window Coverings, Hot Tub Features: Ravine, Crushed stone driveway, Country residential, Sump Pump, Automatic Garage Door Opener, Private Yard Rental Equipment: Fireplace Total: 1 Directions: Plank Road - Chapel Street Zoning Description: A1 Interior Size: 2608 sqft View: View of water Community Features: Quiet Area Communication Type: High Speed Internet Access: Water access Fixture: Ceiling fans Lot: 1.75 ac|1/2 - 1.99 acres 1.75 Exterior Finish: Brick Veneer, Concrete, Stucco, Shingles Water: Municipal water, Municipal sewage system Heating / Cooling: Natural gas / Central air conditioning Age: 2006 Foundation: Poured Concrete Constructed Date: 2006 Basement: Full (Finished) Finished
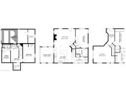
Rooms & Sizes
Full bathroom Second level 10 6 x 12 9
Bedroom Second level 18 9 x 14 6
Primary Bedroom Second level 10 9 x 16 10
Utility room Basement 7 5 x 9 7
Bedroom Basement 10 4 x 16 4
Cold room Basement 6 1 x 6 3
3pc Bathroom Basement 7 5 x 6 6
Dining room Main level 11 8 x 13 9
Bedroom Main level 10 9 x 16 10
Great room Main level 18 6 x 15 0
3pc Bathroom Main level 10 6 x 7 5
Kitchen Main level 15 1 x 14 6
Foyer Main level 11 6 x 12 1
Found a property your're looking for? Schedule a showing with our team. We're here to answer your questions and help you get a closer look.
John DiRenzo
Sales Representative RE/MAX Centre City John DiRenzo Team Brokerage
Direct Phone: (519) 857-3490
John DiRenzo, Salesperson. Cell: (519) 857-3490. RE/MAX Centre City John DiRenzo Team Brokerage.
Terms Of Use
This website is operated by RE/MAX Centre City John DiRenzo Team Brokerage, a brokerage who is a member of The Canadian Real Estate Association (CREA). The content on this website is owned or controlled by CREA. By accessing this website, the user agrees to be bound by these terms of use as amended from time to time, and agrees that these terms of use constitute a binding contract between the user, RE/MAX Centre City John DiRenzo Team Brokerage, and CREA.
The content on this website is protected by copyright and other laws, and is intended solely for the private, non-commercial use by individuals. Any other reproduction, distribution or use of the content, in whole or in part, is specifically prohibited. Prohibited uses include commercial use, "screen scraping", "database scraping", and any other activity intended to collect, store, reorganize or manipulate the content of this website.
Trademarks:
REALTOR®, REALTORS®, and the REALTOR® logo are certification marks that are owned by REALTOR® Canada Inc. and licensed exclusively to The Canadian Real Estate Association (CREA). These certification marks identify real estate professionals who are members of CREA and who must abide by CREA's By-Laws, Rules, and the REALTOR® Code. The MLS® trademark and the MLS® logo are owned by CREA and identify the professional real estate services provided by members of CREA. The data provided is for informational purposes only and should not be relied upon without verification.