Address: 326 VIDAL STREET North, Sarnia FOR SALE Postal Code: N7T5Y6 Style: Detached Type: Single Family House Bedrooms: 10 Bathrooms: 5 Bedrooms Aboveground: 7 Bedrooms Belowground: 3 Parking: Detached Garage Garage: Detached Garage Lot Size: x Property Size: 99.9 X 150.10 / 0.34 AC Stories: 3
About 326 Vidal Street North
This impressive 3-storey Century home delivers the space today’s growing families rarely find, combining classic charm with the comfort of a fully modernized home. A grand foyer welcomes you into a bright living room with a gas fireplace, a formal dining room perfect for hosting large family dinners, a private office, a powder room, and a beautiful kitchen with steps to the backyard oasis. The second level features 4 spacious bedrooms, a balcony, and a beautifully appointed 5 pc bathroom with laundry. The second staircase leads to the third floor, which offers two additional oversized bedrooms, ample storage, and a 4 pc bathroom—ideal for teens, guests, or multigenerational living. The triple-brick renovated basement has a separate side entrance to a fully legal suite: a complete 2-bedroom apartment with a fully equipped Kitchen, used as a licensed short-term rental. Plus a 3rd bedroom with a wet bar, the 5th bathroom, and a 2nd laundry suite. Situated on nearly one-third of an acre, the fully fenced yard features a 20x40 inground pool with a newer liner, pump and filter, a 6-person hot tub, plenty of green space for kids to play, a detached double garage, and a generous concrete driveway. The substantial upgrades include: a 200-amp electrical service, new water and sewer lines installed in 2022, and fully upgraded heating and cooling infrastructure, including a high-efficiency boiler with an individual hydronic system, smart thermostats in every room, ductless A/C, a hybrid hwt, and vinyl windows. Don’t miss out on this Opportunity to own a stunning character home with gleaming hardwood floors and exceptional craftsmanship, where all the heavy lifting has already been done.—offering space, comfort, and income potential in a prime location. (id:56071). Get more information on 326 Vidal Street North
Property Features
Appliances: Hot Tub, Dishwasher, Dryer, Microwave, Stove, Washer, Oven, Two Refrigerators Features: Concrete Driveway, Side Driveway Rental Equipment: Fireplace: Gas Insert Pool Type: Inground pool Directions: Go South from London Rd onto Vidal, 326 Vidal is on your left. Zoning Description: R2 Interior Size: 4978 sqft Fence: Fence Lot: 99.9 X 150.10 / 0.34 AC 99.9 X 150.10 / 0.34 AC Exterior Finish: Brick Flooring: Ceramic/Porcelain, Hardwood, Cushion/Lino/Vinyl Water: , Heating / Cooling: Natural gas / Partially air conditioned Age: 1906 Foundation: Concrete Finished Area: 4978 sqft Constructed Date: 1906 Basement:
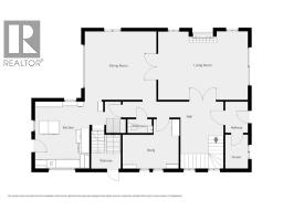
Rooms & Sizes
Balcony Second level 12.4 x 8
5pc Bathroom Second level 11.5 x 12.6
Bedroom Second level 11.10 x 14.10
Bedroom Second level 10.10 x 11
Bedroom Second level 15 x 15.1
Primary Bedroom Second level 15.8 x 15.1
Storage Third level 13.1 x 10.5
4pc Bathroom Third level 10.2 x 11
Bedroom Third level 14.5 x 15.2
Bedroom Third level 16.3 x 15.4
Laundry room Basement 14.4 x 5.10
Utility room Basement 10 x 6.9
3pc Bathroom Basement 8.4 x 6.8
4pc Bathroom Basement 5 x 9.10
Bedroom Basement 10.11 x 13.6
Bedroom Basement 8.8 x 14
Living room Basement 8.3 x 14.1
Kitchen/Dining room Basement 9.8 x 14.1
Bedroom Basement 15.1 x 12.4
Foyer Main level 10 x 14
Found a property your're looking for? Schedule a showing with our team. We're here to answer your questions and help you get a closer look.
John DiRenzo
Sales Representative RE/MAX Centre City John DiRenzo Team Brokerage
Direct Phone: (519) 857-3490
John DiRenzo, Salesperson. Cell: (519) 857-3490. RE/MAX Centre City John DiRenzo Team Brokerage.
Terms Of Use
This website is operated by RE/MAX Centre City John DiRenzo Team Brokerage, a brokerage who is a member of The Canadian Real Estate Association (CREA). The content on this website is owned or controlled by CREA. By accessing this website, the user agrees to be bound by these terms of use as amended from time to time, and agrees that these terms of use constitute a binding contract between the user, RE/MAX Centre City John DiRenzo Team Brokerage, and CREA.
The content on this website is protected by copyright and other laws, and is intended solely for the private, non-commercial use by individuals. Any other reproduction, distribution or use of the content, in whole or in part, is specifically prohibited. Prohibited uses include commercial use, "screen scraping", "database scraping", and any other activity intended to collect, store, reorganize or manipulate the content of this website.
Trademarks:
REALTOR®, REALTORS®, and the REALTOR® logo are certification marks that are owned by REALTOR® Canada Inc. and licensed exclusively to The Canadian Real Estate Association (CREA). These certification marks identify real estate professionals who are members of CREA and who must abide by CREA's By-Laws, Rules, and the REALTOR® Code. The MLS® trademark and the MLS® logo are owned by CREA and identify the professional real estate services provided by members of CREA. The data provided is for informational purposes only and should not be relied upon without verification.