Address: 34 MANN Avenue, Simcoe FOR SALE Subdivision: Town of Simcoe Postal Code: N3Y5J3 Style: Detached 2 Level Type: Single Family House Bedrooms: 3 Bathrooms: 4 Bedrooms Aboveground: 3 Bedrooms Belowground: 0 Parking: Attached Garage Garage: Attached Garage Lot Size: 51 ft x 98 ft Stories: 2
About 34 Mann Avenue
Great location and fully move-in ready 3 bedroom, 4 bath two-storey home offering approx. 2,600 sq. ft. of finished living space in a popular Simcoe subdivision. Updated throughout - flooring, lighting, kitchen cabinets, countertops, appliances, all bathrooms, and garage door. Main floor features a spacious eat-in kitchen open to the family room, formal dining area, large living room with deck access, main-floor laundry, and 2-pc bath. Upstairs offers a generous primary bedroom with luxury ensuite, plus two additional bedrooms and a 3-pc bath. Finished lower level includes a large rec room, 3-pc bath, two flex rooms for office/craft/gym, and ample storage. Enjoy a low-maintenance yard with sizable deck, double concrete drive, and attached double garage. Family-friendly neighbourhood within short walking distance to shopping, schools, and parks. Immediate possession available. (id:56071). Get more information on 34 Mann Avenue
Property Features
Appliances: Dishwasher, Dryer, Refrigerator, Stove, Water softener, Washer Features: Automatic Garage Door Opener Rental Equipment: Rental Water Softener, Water Heater Fireplace Total: 1 Directions: Donly Drive to Mann Ave Zoning Description: R1-A Interior Size: 2667 sqft Community Features: Quiet Area, Community Centre Lot: under 1/2 acre Exterior Finish: Brick, Vinyl siding Water: Municipal water, Municipal sewage system Heating / Cooling: Natural gas / Central air conditioning Age: 1989 Foundation: Poured Concrete Constructed Date: 1989 Basement: Full (Partially finished) Partially finished
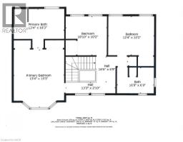
Rooms & Sizes
Bedroom Second level 10 6 x 9 6
Bedroom Second level 13 0 x 10 6
Primary Bedroom Second level 15 0 x 14 6
Full bathroom Second level Measurements not available
3pc Bathroom Second level Measurements not available
Other Basement Measurements not available
3pc Bathroom Basement Measurements not available
Utility room Basement 20 7 x 14 3
Recreation room Basement 20 7 x 12 8
Den Basement 12 3 x 10 9
2pc Bathroom Main level Measurements not available
Laundry room Main level 10 6 x 6 8
Family room Main level 11 6 x 12 10
Kitchen Main level 17 2 x 12 10
Dining room Main level 10 0 x 10 3
Living room Main level 20 3 x 14 0
Found a property your're looking for? Schedule a showing with our team. We're here to answer your questions and help you get a closer look.
John DiRenzo
Sales Representative RE/MAX Centre City John DiRenzo Team Brokerage
Direct Phone: (519) 857-3490
John DiRenzo, Salesperson. Cell: (519) 857-3490. RE/MAX Centre City John DiRenzo Team Brokerage.
Terms Of Use
This website is operated by RE/MAX Centre City John DiRenzo Team Brokerage, a brokerage who is a member of The Canadian Real Estate Association (CREA). The content on this website is owned or controlled by CREA. By accessing this website, the user agrees to be bound by these terms of use as amended from time to time, and agrees that these terms of use constitute a binding contract between the user, RE/MAX Centre City John DiRenzo Team Brokerage, and CREA.
The content on this website is protected by copyright and other laws, and is intended solely for the private, non-commercial use by individuals. Any other reproduction, distribution or use of the content, in whole or in part, is specifically prohibited. Prohibited uses include commercial use, "screen scraping", "database scraping", and any other activity intended to collect, store, reorganize or manipulate the content of this website.
Trademarks:
REALTOR®, REALTORS®, and the REALTOR® logo are certification marks that are owned by REALTOR® Canada Inc. and licensed exclusively to The Canadian Real Estate Association (CREA). These certification marks identify real estate professionals who are members of CREA and who must abide by CREA's By-Laws, Rules, and the REALTOR® Code. The MLS® trademark and the MLS® logo are owned by CREA and identify the professional real estate services provided by members of CREA. The data provided is for informational purposes only and should not be relied upon without verification.