Address: 36 MUNRO Circle, Brantford FOR SALE Subdivision: 2074 - Empire South Postal Code: N3T0R3 Style: Detached 2 Level Type: Single Family House Bedrooms: 4 Bathrooms: 3 Bedrooms Aboveground: 4 Bedrooms Belowground: 0 Parking: Attached Garage Garage: Attached Garage Lot Size: 30 ft x 92 ft Stories: 2
About 36 Munro Circle
Welcome to this beautiful 4-bedroom ,2.5 -bathroom home located in the desirable Brant west community .This property features a functional layout with a modern kitchen ,open living space ,and an additional sitting area .The primary bedroom includes a private ensuite and ample closet spaces.Enjoy a well -maintained backyard, perfect for outdoor relaxation .Attached garage provides convenient parking and storage.Close to schools, parks ,shopping ,and major amenities. (id:56071). Get more information on 36 Munro Circle
Property Features
Appliances: Dishwasher, Dryer, Microwave, Refrigerator, Stove, Washer, Gas stove(s) Rental Equipment: Other, Water Heater Directions: Shellard Ln and Anderson Rd Zoning Description: H-R1D-6 Interior Size: 1631 sqft Fence: Fence Community Features: School Bus Access: Road access Lot: under 1/2 acre Exterior Finish: Brick Water: Municipal water, Municipal sewage system Heating / Cooling: Natural gas / Central air conditioning Age: Basement: Full (Partially finished) Partially finished
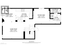
Rooms & Sizes
Bedroom Second level 10 1 x 9 7
Bedroom Second level 10 7 x 9 7
3pc Bathroom Second level 6 4 x 8 2
Bedroom Second level 10 4 x 9 7
Laundry room Second level 5 8 x 8 4
4pc Bathroom Second level 11 2 x 8 4
Bedroom Second level 13 5 x 13 1
Other Basement 41 9 x 22 0
Foyer Main level 7 9 x 7 4
2pc Bathroom Main level 7 4 x 3 2
Sitting room Main level 12 0 x 11 0
Living room Main level 15 8 x 12 4
Dining room Main level 9 6 x 9 6
Kitchen Main level 12 1 x 9 6
Found a property your're looking for? Schedule a showing with our team. We're here to answer your questions and help you get a closer look.
John DiRenzo
Sales Representative RE/MAX Centre City John DiRenzo Team Brokerage
Direct Phone: (519) 857-3490
John DiRenzo, Salesperson. Cell: (519) 857-3490. RE/MAX Centre City John DiRenzo Team Brokerage.
Terms Of Use
This website is operated by RE/MAX Centre City John DiRenzo Team Brokerage, a brokerage who is a member of The Canadian Real Estate Association (CREA). The content on this website is owned or controlled by CREA. By accessing this website, the user agrees to be bound by these terms of use as amended from time to time, and agrees that these terms of use constitute a binding contract between the user, RE/MAX Centre City John DiRenzo Team Brokerage, and CREA.
The content on this website is protected by copyright and other laws, and is intended solely for the private, non-commercial use by individuals. Any other reproduction, distribution or use of the content, in whole or in part, is specifically prohibited. Prohibited uses include commercial use, "screen scraping", "database scraping", and any other activity intended to collect, store, reorganize or manipulate the content of this website.
Trademarks:
REALTOR®, REALTORS®, and the REALTOR® logo are certification marks that are owned by REALTOR® Canada Inc. and licensed exclusively to The Canadian Real Estate Association (CREA). These certification marks identify real estate professionals who are members of CREA and who must abide by CREA's By-Laws, Rules, and the REALTOR® Code. The MLS® trademark and the MLS® logo are owned by CREA and identify the professional real estate services provided by members of CREA. The data provided is for informational purposes only and should not be relied upon without verification.