Address: 3841 BIG LEAF TRAIL, London South (South V) FOR SALE Postal Code: N6P0A3 Style: Detached Type: Single Family House Bedrooms: 3 Bathrooms: 3 Bedrooms Aboveground: 3 Parking: Attached Garage Garage: Attached Garage Lot Size: 40 ft x 115 ft Property Size: 40 x 115 FT Stories: 2
About 3841 Big Leaf Trail
TO BE BUILT (Price includes HST Rebate assigned back to Builder) - Welcome to the stunning Chateau model, a beautifully designed 2 storey, open-concept home featuring 3 bedrooms and 3 bathrooms Built by Grand Oak Homes, this modern farm house design combines style, function, and comfort with clean lines, 9 foot ceilings, and large windows that flood the home with natural light. The heart of the home is the spacious living area, highlighted by an airy open concept floor plan. The kitchen boasts quality finishes and seamlessly connects to the dining and living spaces, creating the perfect environment for both everyday living and entertaining. Both bathrooms feature luxurious tiled showers, while the master suite offers a tranquil retreat. A double car garage provides plenty of storage and convenience, while the option to add a side entrance for a future basement apartment adds additional potential. Located in the highly sought-after Lambeth Magnolia Fields subdivision, this home is ideally positioned just minutes from Highway 401, Highway 402, schools, shopping, gyms, golf courses, and nature trails. With Grand Oak Homes Renowned attention to detail and customizable plans, you can tailor the home to suit your needs. (id:56071). Get more information on 3841 Big Leaf Trail
Property Features
Appliances: Water Heater - Tankless Features: Flat site Rental Equipment: Fireplace Total: 1 Directions: Cross Streets: PETALPATH WAY. ** Directions: COLONEL TALBOT TO ROYAL MAGNOLIA AVE, MAGNOLIA TO BIG LEAF. Zoning Description: R1-3 Interior Size: 1500 - 2000 sqft Lot: 40 x 115 FT|under 1/2 acre 40 x 115 FT Exterior Finish: Brick, Vinyl siding Water: Municipal water, Sanitary sewer Heating / Cooling: Natural gas / Central air conditioning Age: New building Foundation: Poured Concrete Basement: Full (Unfinished) Unfinished
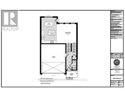
Rooms & Sizes
Primary Bedroom Second level 5.38 m x 4.11 m
Bedroom 2 Second level 3.67 m x 3.08 m
Bedroom 3 Second level 3.47 m x 3.08 m
Laundry room Second level 2.35 m x 1.86 m
Kitchen Main level 3.38 m x 2.74 m
Dining room Main level 3.38 m x 2.99 m
Great room Main level 4.29 m x 4.29 m
Found a property your're looking for? Schedule a showing with our team. We're here to answer your questions and help you get a closer look.
John DiRenzo
Sales Representative RE/MAX Centre City John DiRenzo Team Brokerage
Direct Phone: (519) 857-3490
John DiRenzo, Salesperson. Cell: (519) 857-3490. RE/MAX Centre City John DiRenzo Team Brokerage.
Terms Of Use
This website is operated by RE/MAX Centre City John DiRenzo Team Brokerage, a brokerage who is a member of The Canadian Real Estate Association (CREA). The content on this website is owned or controlled by CREA. By accessing this website, the user agrees to be bound by these terms of use as amended from time to time, and agrees that these terms of use constitute a binding contract between the user, RE/MAX Centre City John DiRenzo Team Brokerage, and CREA.
The content on this website is protected by copyright and other laws, and is intended solely for the private, non-commercial use by individuals. Any other reproduction, distribution or use of the content, in whole or in part, is specifically prohibited. Prohibited uses include commercial use, "screen scraping", "database scraping", and any other activity intended to collect, store, reorganize or manipulate the content of this website.
Trademarks:
REALTOR®, REALTORS®, and the REALTOR® logo are certification marks that are owned by REALTOR® Canada Inc. and licensed exclusively to The Canadian Real Estate Association (CREA). These certification marks identify real estate professionals who are members of CREA and who must abide by CREA's By-Laws, Rules, and the REALTOR® Code. The MLS® trademark and the MLS® logo are owned by CREA and identify the professional real estate services provided by members of CREA. The data provided is for informational purposes only and should not be relied upon without verification.