Brokered by: Van Londersele Real Estate Brokerage Ltd.
MLS®: 40814259 (Freehold)
Price: $549,000.00
Address: 405 ADAMS Avenue, Delhi FOR SALE Subdivision: Delhi Postal Code: N4B2Y8 Style: Detached Bungalow Type: Single Family House Bedrooms: 3 Bathrooms: 2 Bedrooms Aboveground: 3 Bedrooms Belowground: 0 Parking: Attached Garage Garage: Attached Garage Lot Size: 66 ft x 120 ft Property Size: 0.18 Stories: 1
About 405 Adams Avenue
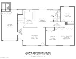
Step into this charming 3-bedroom, 2-bathroom family home, situated in one of the area’s most desirable family neighborhoods. Offering excellent curb appeal with a paved driveway, this home features a bright, layout filled with natural light, ideal for living and entertaining. The main floor includes an open kitchen and dining area with walkout access to the deck, a large inviting living room, three comfortable bedrooms, a 4-piece bathroom, and a welcoming foyer with access to the attached garage, as well as both the main level and basement. Downstairs, you’ll find two generously sized rooms with great potential, waiting for your personal touch to transform them into a fantastic rec room or additional living space. The basement also includes a 3-piece bathroom, laundry area, and utility room. Additional highlights include a durable steel roof, a large backyard with deck, perfect for outdoor enjoyment, and two storage sheds for added convenience. (id:56071). Get more information on 405 Adams Avenue
Property Features
Rental Equipment: Water Heater Zoning Description: R1 Interior Size: 2100 sqft Lot: 0.18 ac|under 1/2 acre 0.18 Exterior Finish: Brick Veneer Water: Municipal water, Municipal sewage system Heating / Cooling: Natural gas / Central air conditioning Age: Basement: Full (Partially finished) Partially finished
Rooms & Sizes
3pc Bathroom Basement 5 6 x 12 0
Laundry room Basement 4 1 x 12 0
Recreation room Basement 24 1 x 12 8
Recreation room Basement 20 2 x 13 3
Primary Bedroom Main level 10 9 x 13 0
Bedroom Main level 9 6 x 13 0
Bedroom Main level 9 7 x 10 9
4pc Bathroom Main level 7 7 x 8 10
Living room Main level 16 6 x 13 0
Dining room Main level 10 8 x 13 0
Kitchen Main level 8 10 x 13 0
Foyer Main level 3 7 x 12 6
Found a property your're looking for? Schedule a showing with our team. We're here to answer your questions and help you get a closer look.
John DiRenzo
Sales Representative RE/MAX Centre City John DiRenzo Team Brokerage
Direct Phone: (519) 857-3490
Brokered by: RE/MAX Erie Shores Realty Inc. Brokerage
John DiRenzo, Salesperson. Cell: (519) 857-3490. RE/MAX Centre City John DiRenzo Team Brokerage.
Terms Of Use
This website is operated by RE/MAX Centre City John DiRenzo Team Brokerage, a brokerage who is a member of The Canadian Real Estate Association (CREA). The content on this website is owned or controlled by CREA. By accessing this website, the user agrees to be bound by these terms of use as amended from time to time, and agrees that these terms of use constitute a binding contract between the user, RE/MAX Centre City John DiRenzo Team Brokerage, and CREA.
The content on this website is protected by copyright and other laws, and is intended solely for the private, non-commercial use by individuals. Any other reproduction, distribution or use of the content, in whole or in part, is specifically prohibited. Prohibited uses include commercial use, "screen scraping", "database scraping", and any other activity intended to collect, store, reorganize or manipulate the content of this website.
Trademarks:
REALTOR®, REALTORS®, and the REALTOR® logo are certification marks that are owned by REALTOR® Canada Inc. and licensed exclusively to The Canadian Real Estate Association (CREA). These certification marks identify real estate professionals who are members of CREA and who must abide by CREA's By-Laws, Rules, and the REALTOR® Code. The MLS® trademark and the MLS® logo are owned by CREA and identify the professional real estate services provided by members of CREA. The data provided is for informational purposes only and should not be relied upon without verification.