Address: 4094 FALLINGBROOK ROAD, London South (South V) FOR SALE Postal Code: N6P0H8 Style: Detached Bungalow Type: Single Family House Bedrooms: 4 Bathrooms: 4 Bedrooms Aboveground: 2 Bedrooms Belowground: 2 Parking: Attached Garage Garage: Attached Garage Lot Size: 52 ft ,10 in x 127 ft ,4 in Property Size: 52.9 x 127.4 FT Stories: 1
About 4094 Fallingbrook Road
Experience the prestige of the LHBA Home of the Year. The Myra by Halcyon Homes is a masterclass in modern execution and a benchmark for luxury living in Lambeth s coveted Heathwoods community.Situated on a premium 55-foot lot (52.91 x127.38 ) backing onto a tranquil water feature, this exceptional bungalow offers 2,069sq ft of refined main-floor living with an additional 1,600sq ft of fully finished walkout lower level, creating an expansive lifestyle environment ideal for everyday living & entertaining.A striking mid-century inspired façade blends antique wood fluted siding with a custom mix of Arriscraft Shadow Stone and Urban Ledgestone, creating a bold architectural presence.Inside, wide-plank 7.5-inch white oak flooring, soaring ceilings, & expansive black-framed windows define the open-concept main level.The great room is anchored by a dramatic microcement fireplace with vertically stacked Arabescato ribbed marble.The designer kitchen features HanStone Matterhorn quartz counters with full-height backsplash, custom rift oak cabinetry, and a dedicated coffee bar. A private office sits behind pivot-hinged reeded glass doors, while the primary suite offers a spa-inspired ensuite with polished jade tile & wall-mounted Vogt fixtures.The fully finished walkout lower level adds approx 1,600sq ft of additional living space with 2 bedrooms, including one with a private ensuite. A dedicated gym can easily be converted into a fifth bedroom, providing flexible space for guests or extended family.The level is completed by a large recreation area with a 72-inch fireplace & smoked-glass bar designed for entertaining.Additional features include two fireplaces, central air,forced-air heating, an attached two-car garage plus double private driveway(4 total parking spaces)& dual covered decks overlooking the water feature and surrounding green space.This award-winning residence offers a rare opportunity to own a design-forward home in one of Lambeth s most desirable communities. (id:56071). Get more information on 4094 Fallingbrook Road
Property Features
Appliances: Oven - Built-In, Range, Water Heater - Tankless, Water Heater, Dishwasher, Dryer, Humidifier, Microwave, Oven, Stove, Washer, Refrigerator Features: Sump Pump Rental Equipment: Fireplace Total: 2 Directions: Colonel Talbot Rd Zoning Description: R1-4 Interior Size: 2000 - 2500 sqft Amenities: Fireplace(s) Lot: 52.9 x 127.4 FT 52.9 x 127.4 FT Exterior Finish: Brick Water: Municipal water, Sanitary sewer Heating / Cooling: Natural gas / Central air conditioning Age: Foundation: Poured Concrete Basement: N/A (Finished) Finished
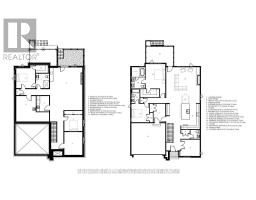
Rooms & Sizes
Exercise room Basement 3.61 m x 3.1 m
Recreational, Games room Basement 7.06 m x 6.6 m
Family room Basement 5.77 m x 4.24 m
Bedroom 3 Basement 4.62 m x 4.24 m
Bedroom 4 Basement 3.61 m x 4.83 m
Great room Main level 6.38 m x 5.46 m
Kitchen Main level 3.96 m x 4.29 m
Dining room Main level 3.96 m x 3.63 m
Primary Bedroom Main level 4.62 m x 4.57 m
Office Main level 3.61 m x 3.35 m
Bedroom 2 Main level 3.61 m x 3.35 m
Found a property your're looking for? Schedule a showing with our team. We're here to answer your questions and help you get a closer look.
John DiRenzo
Sales Representative RE/MAX Centre City John DiRenzo Team Brokerage
Direct Phone: (519) 857-3490
John DiRenzo, Salesperson. Cell: (519) 857-3490. RE/MAX Centre City John DiRenzo Team Brokerage.
Terms Of Use
This website is operated by RE/MAX Centre City John DiRenzo Team Brokerage, a brokerage who is a member of The Canadian Real Estate Association (CREA). The content on this website is owned or controlled by CREA. By accessing this website, the user agrees to be bound by these terms of use as amended from time to time, and agrees that these terms of use constitute a binding contract between the user, RE/MAX Centre City John DiRenzo Team Brokerage, and CREA.
The content on this website is protected by copyright and other laws, and is intended solely for the private, non-commercial use by individuals. Any other reproduction, distribution or use of the content, in whole or in part, is specifically prohibited. Prohibited uses include commercial use, "screen scraping", "database scraping", and any other activity intended to collect, store, reorganize or manipulate the content of this website.
Trademarks:
REALTOR®, REALTORS®, and the REALTOR® logo are certification marks that are owned by REALTOR® Canada Inc. and licensed exclusively to The Canadian Real Estate Association (CREA). These certification marks identify real estate professionals who are members of CREA and who must abide by CREA's By-Laws, Rules, and the REALTOR® Code. The MLS® trademark and the MLS® logo are owned by CREA and identify the professional real estate services provided by members of CREA. The data provided is for informational purposes only and should not be relied upon without verification.