Brokered by: ROYAL LEPAGE TRILAND PREMIER BROKERAGE
MLS®: X12525298 ()
Price: $499,900.00
Address: 419 BASE LINE ROAD E, London South (South G) FOR SALE Postal Code: N6C2P5 Style: Bedrooms: 0 Bathrooms: 0 Lot Size: 49 ft ,10 in x 141 ft ,1 in Property Size: 49.86 x 141.09 FT ; 141.09 ft x 50.10 ft x142.52 ftx49.83 ft
About 419 Base Line Road E
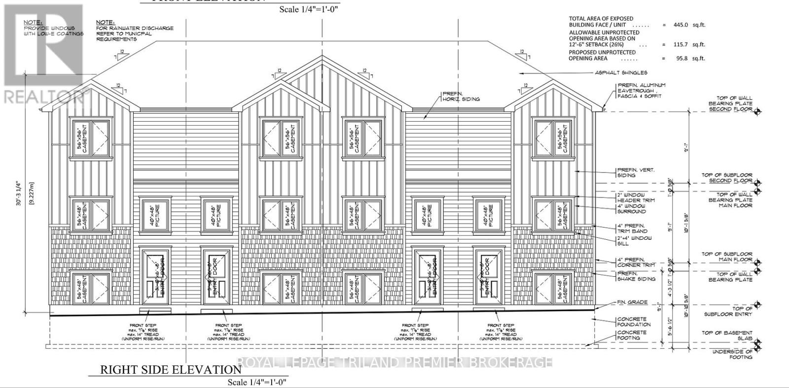
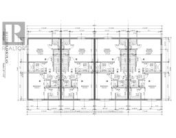
Outstanding building opportunity on generous 49 x 141 lot. Don t miss out on this rare opportunity to secure a prime building lot in one of London s most desirable and high-demand areas, just steps from vibrant Wortley Village. This exceptional property includes approved plans for a four-unit row home - an ideal investment or development project. Alternatively, design and build your dream single-family custom home in this sought-after location. Enjoy the convenience of nearby Victoria hospital, grocery stores, restaurants, and public transit, with quick and easy access to highway 401. A truly exceptional opportunity to invest, build, and grow in one of the city s most coveted neighbourhoods. (id:56071). Get more information on 419 Base Line Road E
Property Features
Rental Equipment: Directions: NEAR RIDOUT STREET Zoning Description: R1-6 Lot: 49.86 x 141.09 FT ; 141.09 ft x 50.10 ft x142.52 ftx49.83 ft|1/2 - 1.99 acres 49.86 x 141.09 FT ; 141.09 ft x 50.10 ft x142.52 ftx49.83 ft Water: , Heating / Cooling: / Age: Basement:
Rooms & Sizes
Found a property your're looking for? Schedule a showing with our team. We're here to answer your questions and help you get a closer look.
John DiRenzo
Sales Representative RE/MAX Centre City John DiRenzo Team Brokerage
Direct Phone: (519) 857-3490
John DiRenzo, Salesperson. Cell: (519) 857-3490. RE/MAX Centre City John DiRenzo Team Brokerage.
Terms Of Use
This website is operated by RE/MAX Centre City John DiRenzo Team Brokerage, a brokerage who is a member of The Canadian Real Estate Association (CREA). The content on this website is owned or controlled by CREA. By accessing this website, the user agrees to be bound by these terms of use as amended from time to time, and agrees that these terms of use constitute a binding contract between the user, RE/MAX Centre City John DiRenzo Team Brokerage, and CREA.
The content on this website is protected by copyright and other laws, and is intended solely for the private, non-commercial use by individuals. Any other reproduction, distribution or use of the content, in whole or in part, is specifically prohibited. Prohibited uses include commercial use, "screen scraping", "database scraping", and any other activity intended to collect, store, reorganize or manipulate the content of this website.
Trademarks:
REALTOR®, REALTORS®, and the REALTOR® logo are certification marks that are owned by REALTOR® Canada Inc. and licensed exclusively to The Canadian Real Estate Association (CREA). These certification marks identify real estate professionals who are members of CREA and who must abide by CREA's By-Laws, Rules, and the REALTOR® Code. The MLS® trademark and the MLS® logo are owned by CREA and identify the professional real estate services provided by members of CREA. The data provided is for informational purposes only and should not be relied upon without verification.