Address: 42 GILBERT Avenue, Ancaster FOR SALE Subdivision: 425 - Dancaster/Nakoma/Maple Lane Postal Code: L9G1R4 Style: Detached Bungalow Type: Single Family House Bedrooms: 4 Bathrooms: 1 Bedrooms Aboveground: 3 Bedrooms Belowground: 1 Parking: Attached Garage Garage: Attached Garage Lot Size: 75 ft x 100 ft Property Size: 0.17 Stories: 1
About 42 Gilbert Avenue
This charming 3+1 bedroom bungalow has been lovingly and meticulously maintained by one family for over 70 years. Filled with natural light and brimming with timeless character, this home offers a rare opportunity to become part of one of Ancaster’s most sought-after, mature, and family-friendly neighbourhoods. Situated on an impressive 75 x 100 ft lot, the possibilities here are truly endless. Whether you’re a first-time buyer looking to establish roots in a welcoming community, planning a thoughtful addition to create more space for your growing family, or envisioning a custom dream home build, this property provides the perfect canvas. Balancing charm, character, and everyday convenience, this centrally located home is just minutes from everything Ancaster has to offer shopping, parks,scenic trails, golf courses, highway access, and top-rated schools, including a French immersion program at Frank Panabaker Elementary. A rare opportunity to create your next chapter in a truly special community. (id:56071). Get more information on 42 Gilbert Avenue
Property Features
Appliances: Dryer, Refrigerator, Stove, Washer, Garage door opener Features: Automatic Garage Door Opener Rental Equipment: Water Heater Directions: Fiddlers Green Rd. to Gilbert Avenue Zoning Description: ER Interior Size: 1097 sqft Community Features: School Bus Access: Highway access Lot: 0.17 ac|under 1/2 acre 0.17 Exterior Finish: Aluminum siding Water: Municipal water, Municipal sewage system Heating / Cooling: / Central air conditioning Age: Basement: Full (Partially finished) Partially finished
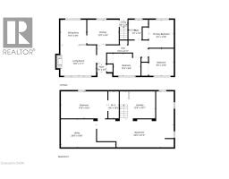
Rooms & Sizes
Utility room Basement 20 9 x 10 8
Laundry room Basement 13 5 x 10 7
Family room Basement 29 6 x 21 3
Bedroom Basement 17 8 x 10 3
4pc Bathroom Main level Measurements not available
Bedroom Main level 8 6 x 10 3
Bedroom Main level 10 4 x 9 5
Primary Bedroom Main level 10 8 x 9 5
Kitchen Main level 9 4 x 12 4
Dining room Main level 9 8 x 9 10
Living room Main level 11 7 x 15 0
Found a property your're looking for? Schedule a showing with our team. We're here to answer your questions and help you get a closer look.
John DiRenzo
Sales Representative RE/MAX Centre City John DiRenzo Team Brokerage
Direct Phone: (519) 857-3490
John DiRenzo, Salesperson. Cell: (519) 857-3490. RE/MAX Centre City John DiRenzo Team Brokerage.
Terms Of Use
This website is operated by RE/MAX Centre City John DiRenzo Team Brokerage, a brokerage who is a member of The Canadian Real Estate Association (CREA). The content on this website is owned or controlled by CREA. By accessing this website, the user agrees to be bound by these terms of use as amended from time to time, and agrees that these terms of use constitute a binding contract between the user, RE/MAX Centre City John DiRenzo Team Brokerage, and CREA.
The content on this website is protected by copyright and other laws, and is intended solely for the private, non-commercial use by individuals. Any other reproduction, distribution or use of the content, in whole or in part, is specifically prohibited. Prohibited uses include commercial use, "screen scraping", "database scraping", and any other activity intended to collect, store, reorganize or manipulate the content of this website.
Trademarks:
REALTOR®, REALTORS®, and the REALTOR® logo are certification marks that are owned by REALTOR® Canada Inc. and licensed exclusively to The Canadian Real Estate Association (CREA). These certification marks identify real estate professionals who are members of CREA and who must abide by CREA's By-Laws, Rules, and the REALTOR® Code. The MLS® trademark and the MLS® logo are owned by CREA and identify the professional real estate services provided by members of CREA. The data provided is for informational purposes only and should not be relied upon without verification.