Brokered by: RE/MAX TWIN CITY REALTY INC. BROKERAGE-2
MLS®: 40783767 (Freehold)
Price: $649,900.00
Address: 439 ALICE Avenue, Kitchener FOR SALE Subdivision: 323 - Victoria Hills Postal Code: N2M2A3 Style: Detached 2 Level Type: Single Family House Bedrooms: 3 Bathrooms: 1 Bedrooms Aboveground: 3 Bedrooms Belowground: 0 Lot Size: 55 ft x Stories: 2
About 439 Alice Avenue
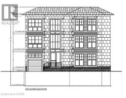
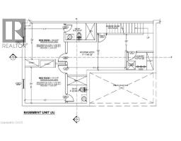
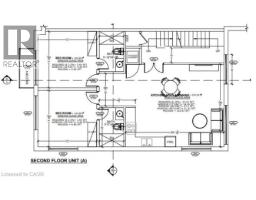
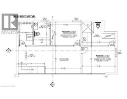
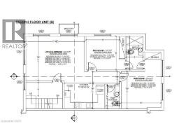
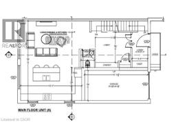
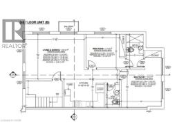
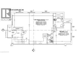
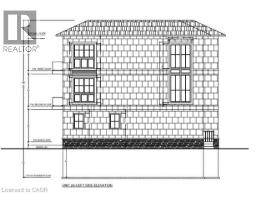
Approved by the City of Kitchener. Attention developers and investors! 6 units possible here. Redevelopment site for 2 triplex s (built as 2 x semi-detached with 3 units in each – see photo gallery for conceptual rendering). Plans attached as supplement documents. Existing structure is best to be ripped down. This property is brimming with potential—pre-approved by the City of Kitchener for a triplex redevelopment. Situated on a large lot in the heart of Kitchener. The existing home currently offers 3 bedrooms and 1 bathroom, providing a solid foundation for renovation or expansion. Conveniently located near public transit, the LRT, Google, Victoria Park, shopping, and other key amenities, this property presents an incredible opportunity for those looking to invest or undertake a full home renovation. (id:56071). Get more information on 439 Alice Avenue
Property Features
Rental Equipment: Directions: WESTMOUNT RD - KARN ST - ALICE AVENUE Zoning Description: R2B Interior Size: 1000 sqft Community Features: Community Centre Lot: under 1/2 acre Exterior Finish: Vinyl siding Water: Municipal water, Municipal sewage system Heating / Cooling: Electric / None Age: 1943 Constructed Date: 1943 Basement: Full (Partially finished) Partially finished
Rooms & Sizes
Bedroom Second level 10 6 x 7 11
Bedroom Second level 11 10 x 15 0
Utility room Basement 8 0 x 5 4
Storage Basement 21 3 x 21 10
Storage Basement 13 1 x 11 0
Primary Bedroom Main level 10 4 x 7 11
Living room Main level 13 11 x 11 2
Kitchen Main level 13 10 x 11 8
Dining room Main level 9 0 x 11 2
3pc Bathroom Main level Measurements not available
Found a property your're looking for? Schedule a showing with our team. We're here to answer your questions and help you get a closer look.
John DiRenzo
Sales Representative RE/MAX Centre City John DiRenzo Team Brokerage
Direct Phone: (519) 857-3490
John DiRenzo, Salesperson. Cell: (519) 857-3490. RE/MAX Centre City John DiRenzo Team Brokerage.
Terms Of Use
This website is operated by RE/MAX Centre City John DiRenzo Team Brokerage, a brokerage who is a member of The Canadian Real Estate Association (CREA). The content on this website is owned or controlled by CREA. By accessing this website, the user agrees to be bound by these terms of use as amended from time to time, and agrees that these terms of use constitute a binding contract between the user, RE/MAX Centre City John DiRenzo Team Brokerage, and CREA.
The content on this website is protected by copyright and other laws, and is intended solely for the private, non-commercial use by individuals. Any other reproduction, distribution or use of the content, in whole or in part, is specifically prohibited. Prohibited uses include commercial use, "screen scraping", "database scraping", and any other activity intended to collect, store, reorganize or manipulate the content of this website.
Trademarks:
REALTOR®, REALTORS®, and the REALTOR® logo are certification marks that are owned by REALTOR® Canada Inc. and licensed exclusively to The Canadian Real Estate Association (CREA). These certification marks identify real estate professionals who are members of CREA and who must abide by CREA's By-Laws, Rules, and the REALTOR® Code. The MLS® trademark and the MLS® logo are owned by CREA and identify the professional real estate services provided by members of CREA. The data provided is for informational purposes only and should not be relied upon without verification.