Address: 44 BRECKENRIDGE Drive, Kitchener FOR SALE Subdivision: 224 - Heritage Park/Rosemount Postal Code: N2B2N9 Style: Semi-detached Bungalow Type: Single Family House Bedrooms: 3 Bathrooms: 2 Bedrooms Aboveground: 3 Bedrooms Belowground: 0 Parking: Attached Garage Garage: Attached Garage Lot Size: 30 ft x 112 ft Stories: 1
About 44 Breckenridge Drive
This all-brick semi-detached freehold bungalow offers convenient main-floor living, garage parking, walkout basement, and a location on a quiet street just a few blocks from the Stanley Park Place and Community Centre! Enjoy the ease of bungalow living with 3x main-floor bedrooms and 4-piece bathroom. The spacious kitchen delivers ample storage and full appliance package including updated dishwasher. Enjoy dining with great natural light from the sliding-door. Access to the outdoors makes accessing your bbq a breeze! The fully-fenced backyard provides mature tree coverage, storage shed, space for gardens, and clothesline. Relax on the covered front porch. Make use of the garage parking to keep your vehicle out of the elements. A walkout basement here provides for possibilities! Find a second full bathroom in the basement along with spacious recreation room. The utility room offers washer & dryer set and sump pump. Notable updates include roof shingles, furnace, sump pump, dishwasher, asphalt driveway, and eavestrough gutter guards. This home is being sold as is, where is by an executor of the estate. With some great features, this home has great potential for buyers looking for main-floor living and those who can see potential of the walkout basement. Nearby amenities including Stanley Park Conservation Area, Stanley Park Place shopping centre, Stanley Park Community Centre, and Grand River Recreation Complex with swimming pool, playgrounds, ball diamonds, and lawn bowling. Highway access and Kitchener Auditorium nearby. A great offering at home, and with a collection of exciting amenities nearby, this is worth seeing today! (id:56071). Get more information on 44 Breckenridge Drive
Property Features
Appliances: Dishwasher, Dryer, Refrigerator, Stove, Water softener, Washer Features: Paved driveway, Sump Pump, Automatic Garage Door Opener Rental Equipment: Water Heater Directions: Turn North onto Breckenridge Drive from Ottawa Street North, and find the home on the right side of the street. Zoning Description: RES-4 Interior Size: 1616 sqft Community Features: Community Centre Access: Highway access Fixture: Ceiling fans Lot: under 1/2 acre Exterior Finish: Brick Water: Municipal water, Municipal sewage system, Septic System Heating / Cooling: Natural gas / Central air conditioning Age: 1971 Constructed Date: 1971 Basement: Full (Finished) Finished
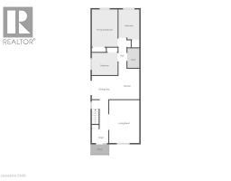
Rooms & Sizes
Recreation room Basement 30 9 x 10 10
3pc Bathroom Basement 7 3 x 6 11
Primary Bedroom Main level 14 5 x 10 0
Bedroom Main level 11 8 x 8 5
Bedroom Main level 8 6 x 10 0
4pc Bathroom Main level 7 6 x 4 10
Dining room Main level 9 11 x 9 1
Kitchen Main level 11 9 x 8 11
Living room Main level 16 7 x 11 10
Found a property your're looking for? Schedule a showing with our team. We're here to answer your questions and help you get a closer look.
John DiRenzo
Sales Representative RE/MAX Centre City John DiRenzo Team Brokerage
Direct Phone: (519) 857-3490
John DiRenzo, Salesperson. Cell: (519) 857-3490. RE/MAX Centre City John DiRenzo Team Brokerage.
Terms Of Use
This website is operated by RE/MAX Centre City John DiRenzo Team Brokerage, a brokerage who is a member of The Canadian Real Estate Association (CREA). The content on this website is owned or controlled by CREA. By accessing this website, the user agrees to be bound by these terms of use as amended from time to time, and agrees that these terms of use constitute a binding contract between the user, RE/MAX Centre City John DiRenzo Team Brokerage, and CREA.
The content on this website is protected by copyright and other laws, and is intended solely for the private, non-commercial use by individuals. Any other reproduction, distribution or use of the content, in whole or in part, is specifically prohibited. Prohibited uses include commercial use, "screen scraping", "database scraping", and any other activity intended to collect, store, reorganize or manipulate the content of this website.
Trademarks:
REALTOR®, REALTORS®, and the REALTOR® logo are certification marks that are owned by REALTOR® Canada Inc. and licensed exclusively to The Canadian Real Estate Association (CREA). These certification marks identify real estate professionals who are members of CREA and who must abide by CREA's By-Laws, Rules, and the REALTOR® Code. The MLS® trademark and the MLS® logo are owned by CREA and identify the professional real estate services provided by members of CREA. The data provided is for informational purposes only and should not be relied upon without verification.