Address: 45A HOWARD Street, Hagersville FOR SALE Subdivision: Hagersville Postal Code: N0A1H0 Style: Semi-detached 2 Level Type: Single Family House Bedrooms: 3 Bathrooms: 3 Bedrooms Aboveground: 3 Bedrooms Belowground: 0 Parking: Attached Garage Garage: Attached Garage Lot Size: 33 ft x 140 ft Stories: 2
About 45a Howard Street
Welcome to this stunning, brand new 1,887 sq. ft. semi-detached home crafted by renowned builder Venture Homes, situated in an established Hagersville neighbourhood. Featuring a bright and spacious main floor with engineered hardwood, this home offers large principal rooms perfect for entertaining and family life. The chef’s kitchen boasts quartz countertops, an island, stylish backsplash, under-cabinet lighting, and soft-close cabinetry. Upstairs, three oversized bedrooms await, including a primary suite with a huge walk-in closet and a convenient ensuite bath. Enjoy the practicality of a second-floor laundry room and a total of three modern bathrooms. Additional upgrades include central air, an insulated garage with automatic opener and a 10’ wide door, a covered front porch, elegant wood railings with steel balustrades, 5� baseboards throughout and ideally situated on a 140’ deep lot offering access from a rear alley. Attractive financing guaranteed 3.99% for 3-5 yr mortgages 25 yr amortization OAC. The home is Tarion-certified for peace of mind, and the location is unbeatable—close to schools, shopping, and the hospital. Move-in ready with no disappointments! (id:56071). Get more information on 45a Howard Street
Property Features
Appliances: Garage door opener Features: Automatic Garage Door Opener Rental Equipment: Fireplace Total: 1 Fireplace: Electric Other - See remarks Directions: King St W, South on Howard St Zoning Description: H A9 Interior Size: 1887 sqft Community Features: Community Centre Communication Type: High Speed Internet Access: Road access Lot: under 1/2 acre Exterior Finish: Stone, Vinyl siding Water: Municipal water, Municipal sewage system Heating / Cooling: Natural gas / Central air conditioning Age: 2025 Foundation: Poured Concrete Constructed Date: 2025 Basement: Crawl space (Unfinished) Unfinished
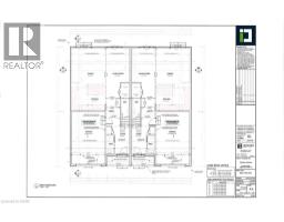
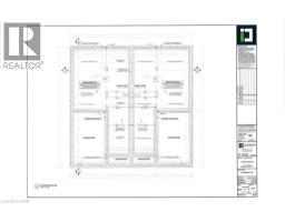
Rooms & Sizes
Other Second level 6 3 x 6 0
Laundry room Second level 5 0 x 8 6
4pc Bathroom Second level Measurements not available
Bedroom Second level 11 0 x 11 6
Bedroom Second level 12 6 x 11 6
Full bathroom Second level 8 6 x 6 0
Primary Bedroom Second level 14 3 x 14 7
Utility room Basement Measurements not available
Living room Main level 13 9 x 9 7
Dining room Main level 13 9 x 13 8
Kitchen Main level 11 2 x 13 8
2pc Bathroom Main level 7 6 x 3 1
Foyer Main level 10 8 x 5 10
Found a property your're looking for? Schedule a showing with our team. We're here to answer your questions and help you get a closer look.
John DiRenzo
Sales Representative RE/MAX Centre City John DiRenzo Team Brokerage
Direct Phone: (519) 857-3490
John DiRenzo, Salesperson. Cell: (519) 857-3490. RE/MAX Centre City John DiRenzo Team Brokerage.
Terms Of Use
This website is operated by RE/MAX Centre City John DiRenzo Team Brokerage, a brokerage who is a member of The Canadian Real Estate Association (CREA). The content on this website is owned or controlled by CREA. By accessing this website, the user agrees to be bound by these terms of use as amended from time to time, and agrees that these terms of use constitute a binding contract between the user, RE/MAX Centre City John DiRenzo Team Brokerage, and CREA.
The content on this website is protected by copyright and other laws, and is intended solely for the private, non-commercial use by individuals. Any other reproduction, distribution or use of the content, in whole or in part, is specifically prohibited. Prohibited uses include commercial use, "screen scraping", "database scraping", and any other activity intended to collect, store, reorganize or manipulate the content of this website.
Trademarks:
REALTOR®, REALTORS®, and the REALTOR® logo are certification marks that are owned by REALTOR® Canada Inc. and licensed exclusively to The Canadian Real Estate Association (CREA). These certification marks identify real estate professionals who are members of CREA and who must abide by CREA's By-Laws, Rules, and the REALTOR® Code. The MLS® trademark and the MLS® logo are owned by CREA and identify the professional real estate services provided by members of CREA. The data provided is for informational purposes only and should not be relied upon without verification.