Address: 50 - 620 THISTLEWOOD DRIVE, London North (North C) FOR SALE Postal Code: N5X0A9 Style: Bungalow Type: Single Family Row / Townhouse Maint/Condo. Fee: 340.00 Fee Includes: Monthly Insurance Management: HIGHPOINT PROPERTY MANAGEMENT Bedrooms: 3 Bathrooms: 3 Bedrooms Aboveground: 2 Bedrooms Belowground: 1 Parking: Attached Garage Garage: Attached Garage Lot Size: x Stories: 1
About 50 - 620 Thistlewood Drive
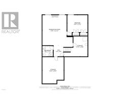
Welcome to this fabulous home centrally located in the Stoney Creek Grove community. This very desirable Auburn Sheffield model offers an open concept design perfect for entertaining and a modern lifestyle. Gorgeous gourmet kitchen perfect for hosting friends and family with a spacious eat-in area and cozy family room with fireplace all bathed in natural light. Step out to your private deck. The primary bedroom is extremely large with its luxury ensuite and walk in closet. The lower level features a family room complete with a cozy fireplace, a third bedroom, a 3 piece bath and lots of storage space in a a very large unfinished area which could easily be finished for even more space! This home shows like a model with attention to detail and is definitely move-in ready. Dont miss out on this one. Its clean as a whip! (id:56071). Get more information on 50 - 620 Thistlewood Drive
Property Features
Appliances: Water meter, Dishwasher, Dryer, Stove, Washer, Refrigerator Features: In suite Laundry Rental Equipment: Water Heater - Gas, Water Heater Directions: Cross Streets: ADELAIDE AND SUNNINGDALE. ** Directions: EAST ON BLACKWATER NORTH ON THISTLEWOOD. PROPERTY ON LEFT. Interior Size: 1200 - 1399 sqft Community Features: Pets Allowed With Restrictions Lot: Exterior Finish: Brick Veneer Water: , Heating / Cooling: Natural gas / Central air conditioning Age: Basement: N/A (Finished) Finished
Rooms & Sizes
Found a property your're looking for? Schedule a showing with our team. We're here to answer your questions and help you get a closer look.
John DiRenzo
Sales Representative RE/MAX Centre City John DiRenzo Team Brokerage
Direct Phone: (519) 857-3490
John DiRenzo, Salesperson. Cell: (519) 857-3490. RE/MAX Centre City John DiRenzo Team Brokerage.
Terms Of Use
This website is operated by RE/MAX Centre City John DiRenzo Team Brokerage, a brokerage who is a member of The Canadian Real Estate Association (CREA). The content on this website is owned or controlled by CREA. By accessing this website, the user agrees to be bound by these terms of use as amended from time to time, and agrees that these terms of use constitute a binding contract between the user, RE/MAX Centre City John DiRenzo Team Brokerage, and CREA.
The content on this website is protected by copyright and other laws, and is intended solely for the private, non-commercial use by individuals. Any other reproduction, distribution or use of the content, in whole or in part, is specifically prohibited. Prohibited uses include commercial use, "screen scraping", "database scraping", and any other activity intended to collect, store, reorganize or manipulate the content of this website.
Trademarks:
REALTOR®, REALTORS®, and the REALTOR® logo are certification marks that are owned by REALTOR® Canada Inc. and licensed exclusively to The Canadian Real Estate Association (CREA). These certification marks identify real estate professionals who are members of CREA and who must abide by CREA's By-Laws, Rules, and the REALTOR® Code. The MLS® trademark and the MLS® logo are owned by CREA and identify the professional real estate services provided by members of CREA. The data provided is for informational purposes only and should not be relied upon without verification.