Address: 574252 OLD SCHOOL LINE, Woodstock (Woodstock - South) FOR SALE Postal Code: N4S7V8 Style: Detached Type: Single Family House Bedrooms: 5 Bathrooms: 4 Bedrooms Aboveground: 4 Bedrooms Belowground: 1 Parking: Attached Garage Garage: Attached Garage Lot Size: x Property Size: 262 x 184.8 Acre Stories: 2
About 574252 Old School Line
Welcome to your dream home, a stunning new build by Everest Homes on nearly half an acre, this beautiful 4-bedroom + den, 4 bath home offers over 3000 sq. ft of refined living space. A grand entrance welcomes you to sun-filled rooms with custom blinds, rich hardwood floors, a sophisticated office space and elegant living and dining areas. The kitchen impresses with quartz counter tops, custom cabinetry and shelving, stainless steel appliances and pot lighting - perfect for entertaining and everyday living. An oak staircase with iron pickets leads to a serene primary suite featuring a spa-like ensuite with a glass rain shower, walk-in closets and a private sitting room. The finished basement provides an elevated extension of the home with a spacious recreation area and extra room for flexibility. Outside enjoy a covered front porch, backyard deck and an insulated garage with car-wash hook-up. Located minutes from major highways, top employers and all amenities, this is luxury living at its finest with country charm. ** This is a linked property.** (id:56071). Get more information on 574252 Old School Line
Property Features
Appliances: Garage door opener remote(s), Water Heater, Water softener, Blinds, Dishwasher, Stove Features: Carpet Free, Sump Pump Rental Equipment: Water Heater, Propane Tank Fireplace Total: 1 Directions: Cross Streets: Old School Line and Hwy 59. ** Directions: South on Hwy 59, turn slight right onto Old School Line, property is corner lot. Zoning Description: A2 Interior Size: 2500 - 3000 sqft Lot: 262 x 184.8 Acre|under 1/2 acre 262 x 184.8 Acre Exterior Finish: Stone, Wood Water: Drilled Well, Septic System Heating / Cooling: Propane / Central air conditioning, Ventilation system Age: 0 to 5 years Foundation: Poured Concrete Basement: N/A (Finished) Finished
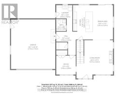
Rooms & Sizes
Found a property your're looking for? Schedule a showing with our team. We're here to answer your questions and help you get a closer look.
John DiRenzo
Sales Representative RE/MAX Centre City John DiRenzo Team Brokerage
Direct Phone: (519) 857-3490
John DiRenzo, Salesperson. Cell: (519) 857-3490. RE/MAX Centre City John DiRenzo Team Brokerage.
Terms Of Use
This website is operated by RE/MAX Centre City John DiRenzo Team Brokerage, a brokerage who is a member of The Canadian Real Estate Association (CREA). The content on this website is owned or controlled by CREA. By accessing this website, the user agrees to be bound by these terms of use as amended from time to time, and agrees that these terms of use constitute a binding contract between the user, RE/MAX Centre City John DiRenzo Team Brokerage, and CREA.
The content on this website is protected by copyright and other laws, and is intended solely for the private, non-commercial use by individuals. Any other reproduction, distribution or use of the content, in whole or in part, is specifically prohibited. Prohibited uses include commercial use, "screen scraping", "database scraping", and any other activity intended to collect, store, reorganize or manipulate the content of this website.
Trademarks:
REALTOR®, REALTORS®, and the REALTOR® logo are certification marks that are owned by REALTOR® Canada Inc. and licensed exclusively to The Canadian Real Estate Association (CREA). These certification marks identify real estate professionals who are members of CREA and who must abide by CREA's By-Laws, Rules, and the REALTOR® Code. The MLS® trademark and the MLS® logo are owned by CREA and identify the professional real estate services provided by members of CREA. The data provided is for informational purposes only and should not be relied upon without verification.