Address: 61 JULIA COURT, London East (East A) FOR SALE Postal Code: N5V4X1 Style: Semi-detached Type: Single Family House Bedrooms: 3 Bathrooms: 6 Bedrooms Aboveground: 3 Parking: Attached Garage Garage: Attached Garage Lot Size: 29 ft ,6 in x 109 ft ,4 in Property Size: 29.5 x 109.4 FT Stories: 2
About 61 Julia Court
Welcome to this beautifully finished 3-bedroom, 3-bathroom semi-detached home with an attached garage, located in a family-friendly neighbourhood. The bright, open-concept main floor is ideal for everyday living and entertaining, featuring a stunning kitchen with stainless steel appliances, quartz countertops, and modern finishes throughout. Custom blinds enhance the main and upper levels, adding style and privacy. Upstairs offers three generously sized bedrooms and a full bathroom, providing comfortable space for the whole family. The fully finished lower level expands your living space with a cozy family room featuring an electric fireplace, a 3-piece bathroom, laundry area, and ample storage. Step outside to a private covered deck overlooking the backyard - perfect for relaxing or entertaining rain or shine. The concrete driveway fits up to four vehicles, plus the attached garage. A recently updated metal roof and eaves add long-term durability and peace of mind. Conveniently located near schools, Argyle Mall, parks, and with easy access to Veterans Memorial Parkway and Highway 401, this move-in ready home is ideal for families of all sizes. Metal roof and eavestrough (2022). Furnace, A/C, water heater owned (2022). Powder room (2020). Kitchen, quartz countertops, stainless steel countertops, vinyl flooring on main (2022). Custom blinds in bedrooms, living room and powder room (2020). (id:56071). Get more information on 61 Julia Court
Property Features
Appliances: Water Heater, Dishwasher, Dryer, Stove, Washer, Window Coverings, Refrigerator Features: Sump Pump Rental Equipment: None Fireplace Total: 1 Directions: Cross Streets: Marconi Blvd/Julia Court. ** Directions: Hamilton Rd. to Clark Rd. North on Clarke Rd. Take Trafalgar St. East to Marconi Blvd. Make a right turn on Marconi Blvd. Turn Right onto Julia Court. Interior Size: 1100 - 1500 sqft Amenities: Fireplace(s) Lot: 29.5 x 109.4 FT 29.5 x 109.4 FT Exterior Finish: Brick, Vinyl siding Water: Municipal water, Sanitary sewer Heating / Cooling: Natural gas / Central air conditioning Age: 31 to 50 years Foundation: Poured Concrete Basement: N/A (Finished) Finished
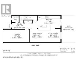
Rooms & Sizes
Bedroom Second level 4.22 m x 2.55 m
Bedroom 2 Second level 3.43 m x 3.6 m
Primary Bedroom Second level 3.64 m x 4.45 m
Kitchen Main level 5.23 m x 2.87 m
Living room Main level 3.7 m x 3.05 m
Dining room Main level 3.28 m x 3.05 m
Found a property your're looking for? Schedule a showing with our team. We're here to answer your questions and help you get a closer look.
John DiRenzo
Sales Representative RE/MAX Centre City John DiRenzo Team Brokerage
Direct Phone: (519) 857-3490
John DiRenzo, Salesperson. Cell: (519) 857-3490. RE/MAX Centre City John DiRenzo Team Brokerage.
Terms Of Use
This website is operated by RE/MAX Centre City John DiRenzo Team Brokerage, a brokerage who is a member of The Canadian Real Estate Association (CREA). The content on this website is owned or controlled by CREA. By accessing this website, the user agrees to be bound by these terms of use as amended from time to time, and agrees that these terms of use constitute a binding contract between the user, RE/MAX Centre City John DiRenzo Team Brokerage, and CREA.
The content on this website is protected by copyright and other laws, and is intended solely for the private, non-commercial use by individuals. Any other reproduction, distribution or use of the content, in whole or in part, is specifically prohibited. Prohibited uses include commercial use, "screen scraping", "database scraping", and any other activity intended to collect, store, reorganize or manipulate the content of this website.
Trademarks:
REALTOR®, REALTORS®, and the REALTOR® logo are certification marks that are owned by REALTOR® Canada Inc. and licensed exclusively to The Canadian Real Estate Association (CREA). These certification marks identify real estate professionals who are members of CREA and who must abide by CREA's By-Laws, Rules, and the REALTOR® Code. The MLS® trademark and the MLS® logo are owned by CREA and identify the professional real estate services provided by members of CREA. The data provided is for informational purposes only and should not be relied upon without verification.