Address: 644 KETTER WAY, Plympton-Wyoming (Plympton Wyoming) FOR SALE Postal Code: N0N1T0 Style: Detached Type: Single Family House Bedrooms: 3 Bathrooms: 3 Bedrooms Aboveground: 3 Parking: Attached Garage Garage: Attached Garage Lot Size: 51 ft ,8 in x 150 ft ,2 in Property Size: 51.7 x 150.2 FT Stories: 2
About 644 Ketter Way
UNDER CONSTRUCTION - The "Matthew" from Tarion award-winning Parry Homes. This model features a stunning great room with vaulted ceiling, large custom kitchen with an island, and a corner pantry. Luxury vinyl plank flooring throughout the entire main floor. The second floor primary bedroom has a walk-in closet and an ensuite bathroom with 2 sinks, a tiled shower, and a soaker tub. Two nicely sized bedrooms, laundry room, and 4pc bathroom complete the space. Two-car attached garage with inside entry. Ideally located near the 402 & a short drive to Sarnia & Strathroy, enjoy peaceful suburban living with easy access to nearby conveniences. Price includes HST, Tarion Warranty, Property Survey, Concrete Driveway & Sod in yard. Taxes & Assessed Value to be determined. Please note that photos are for illustrations purposes only and are from a previously built similar model, and some upgrades/finishes may not be included. (id:56071). Get more information on 644 Ketter Way
Property Features
Appliances: Garage door opener remote(s) Features: Sump Pump Rental Equipment: Water Heater Fireplace Total: 1 Directions: Cross Streets: Confederation Line. ** Directions: Travelling east on Confederation Line, turn right onto Ketter Way. Property is one the left. (Lot 53). Zoning Description: R1 Interior Size: 1500 - 2000 sqft Amenities: Fireplace(s) Lot: 51.7 x 150.2 FT 51.7 x 150.2 FT Exterior Finish: Brick, Vinyl siding Water: Municipal water, Sanitary sewer Heating / Cooling: Natural gas / Central air conditioning Age: Foundation: Poured Concrete Basement: Full (Unfinished) Unfinished
Rooms & Sizes
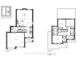
Primary Bedroom Second level 4.27 m x 3.35 m
Bedroom 2 Second level 3.6 m x 3.11 m
Bedroom 3 Second level 3.29 m x 3.54 m
Laundry room Second level 3.35 m x 1.55 m
Great room Main level 6.71 m x 3.96 m
Dining room Main level 3.54 m x 3.23 m
Kitchen Main level 3.23 m x 3.23 m
Mud room Main level 2.83 m x 2.23 m
Found a property your're looking for? Schedule a showing with our team. We're here to answer your questions and help you get a closer look.
John DiRenzo
Sales Representative RE/MAX Centre City John DiRenzo Team Brokerage
Direct Phone: (519) 857-3490
John DiRenzo, Salesperson. Cell: (519) 857-3490. RE/MAX Centre City John DiRenzo Team Brokerage.
Terms Of Use
This website is operated by RE/MAX Centre City John DiRenzo Team Brokerage, a brokerage who is a member of The Canadian Real Estate Association (CREA). The content on this website is owned or controlled by CREA. By accessing this website, the user agrees to be bound by these terms of use as amended from time to time, and agrees that these terms of use constitute a binding contract between the user, RE/MAX Centre City John DiRenzo Team Brokerage, and CREA.
The content on this website is protected by copyright and other laws, and is intended solely for the private, non-commercial use by individuals. Any other reproduction, distribution or use of the content, in whole or in part, is specifically prohibited. Prohibited uses include commercial use, "screen scraping", "database scraping", and any other activity intended to collect, store, reorganize or manipulate the content of this website.
Trademarks:
REALTOR®, REALTORS®, and the REALTOR® logo are certification marks that are owned by REALTOR® Canada Inc. and licensed exclusively to The Canadian Real Estate Association (CREA). These certification marks identify real estate professionals who are members of CREA and who must abide by CREA's By-Laws, Rules, and the REALTOR® Code. The MLS® trademark and the MLS® logo are owned by CREA and identify the professional real estate services provided by members of CREA. The data provided is for informational purposes only and should not be relied upon without verification.