Brokered by: OAK AND KEY REAL ESTATE BROKERAGE, INC.
MLS®: X12553630 (Freehold)
Price: $529,900.00
Address: 87 ELGIN STREET, London East (East M) FOR SALE Postal Code: N5Z2T4 Style: Detached Bungalow Type: Single Family House Bedrooms: 4 Bathrooms: 2 Bedrooms Aboveground: 3 Bedrooms Belowground: 1 Parking: No Garage Garage: No Garage Lot Size: 40 ft ,1 in x 107 ft ,6 in Property Size: 40.1 x 107.5 FT Stories: 1
About 87 Elgin Street
Welcome to 87 Elgin Street, a delightful and versatile bungalow perfectly situated for convenience just off Hamilton Road and Highbury Avenue. This inviting home features a comfortable 3+1 bedrooms and 1+1 bathrooms, making it the ideal choice for first-time home buyers, growing families, or seniors seeking low-maintenance living. The property s standout feature is its income potential, offering flexible living arrangements with two fully equipped kitchens and a separate lower-level entrance, perfect for an in-law suite or generating extra rental income. Enjoy the outdoors with a good-sized backyard and a good-sized shed/workshop for hobbies and storage, all while resting easy with a Brand New Air Conditioning Unit (2025). Location is key: you re within walking distance to major bus routes, just 10 minutes from downtown London, 15 minutes to Fanshawe College, and benefit from easy access to the 401. Don t miss this fantastic opportunity to own a well-located, versatile property (id:56071). Get more information on 87 Elgin Street
Property Features
Appliances: Dishwasher, Dryer, Oven, Alarm System, Stove, Washer, Refrigerator Features: Flat site, Lane, Guest Suite Rental Equipment: Water Heater Directions: Cross Streets: Hamilton Rd and Elgin Street. ** Directions: Turn off of Hamilton Rd onto Elgin St. Zoning Description: R2-2 Interior Size: 700 - 1100 sqft Lot: 40.1 x 107.5 FT 40.1 x 107.5 FT Exterior Finish: Concrete Water: Municipal water, Sanitary sewer Heating / Cooling: Natural gas / Central air conditioning Age: 51 to 99 years Foundation: Brick, Block Basement: Full
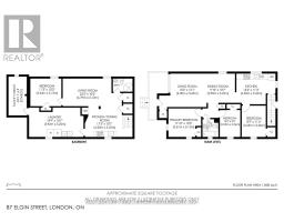
Rooms & Sizes
Cold room Basement 5.92 m x 3.22 m
Cold room Basement 2.02 m x 4.27 m
Living room Basement 4.32 m x 3.42 m
Bathroom Basement 6.79 m x 3.12 m
Kitchen Basement 5.32 m x 3.22 m
Laundry room Basement 3.44 m x 3.12 m
Living room Main level 4 m x 3.69 m
Dining room Main level 2.99 m x 3.22 m
Bathroom Main level 3.61 m x 3.12 m
Bedroom 2 Main level 1.77 m x 2.05 m
Bedroom 3 Main level 2.53 m x 2.96 m
Kitchen Main level 2.65 m x 3.46 m
Found a property your're looking for? Schedule a showing with our team. We're here to answer your questions and help you get a closer look.
John DiRenzo
Sales Representative RE/MAX Centre City John DiRenzo Team Brokerage
Direct Phone: (519) 857-3490
John DiRenzo, Salesperson. Cell: (519) 857-3490. RE/MAX Centre City John DiRenzo Team Brokerage.
Terms Of Use
This website is operated by RE/MAX Centre City John DiRenzo Team Brokerage, a brokerage who is a member of The Canadian Real Estate Association (CREA). The content on this website is owned or controlled by CREA. By accessing this website, the user agrees to be bound by these terms of use as amended from time to time, and agrees that these terms of use constitute a binding contract between the user, RE/MAX Centre City John DiRenzo Team Brokerage, and CREA.
The content on this website is protected by copyright and other laws, and is intended solely for the private, non-commercial use by individuals. Any other reproduction, distribution or use of the content, in whole or in part, is specifically prohibited. Prohibited uses include commercial use, "screen scraping", "database scraping", and any other activity intended to collect, store, reorganize or manipulate the content of this website.
Trademarks:
REALTOR®, REALTORS®, and the REALTOR® logo are certification marks that are owned by REALTOR® Canada Inc. and licensed exclusively to The Canadian Real Estate Association (CREA). These certification marks identify real estate professionals who are members of CREA and who must abide by CREA's By-Laws, Rules, and the REALTOR® Code. The MLS® trademark and the MLS® logo are owned by CREA and identify the professional real estate services provided by members of CREA. The data provided is for informational purposes only and should not be relied upon without verification.