Address: 99 FOURTH CONCESSION Road UnitNo. 612, Burford FOR SALE Subdivision: 2115 - Burford Postal Code: N0E1A0 Style: Detached Mobile Home Type: Single Family Mobile Home Maint/Condo. Fee: 586.00 Bedrooms: 2 Bathrooms: 1 Bedrooms Aboveground: 2 Bedrooms Belowground: 0 Parking: Open Garage: Open Lot Size: x Stories: 1
About 99 Fourth Concession Road Unitno. 612
Welcome to this modern 2023 park home in the sought-after Twin Springs community, just minutes from Burford. Offering bright, open-concept living, this well-appointed home features a stylish kitchen with a large centre island, floor-to-ceiling pantry, and stainless steel appliances overlooking the living and dining area. The home includes a spacious primary bedroom, one additional versatile bedroom, and a full 4-piece bathroom. Enjoy outdoor living on the newly built extended treated wood deck, complete with a convenient storage shed. A rare oversized parking pad provides four dedicated parking spaces, an exceptional feature for the community. Residents of Twin Springs enjoy access to a spring-fed lake, sandy beach, and community events, all conveniently located near Brantford and Highway 403. (id:56071). Get more information on 99 Fourth Concession Road Unitno. 612
Property Features
Appliances: Dishwasher, Dryer, Refrigerator, Washer, Microwave Built-in, Gas stove(s), Hood Fan, Window Coverings Features: Conservation/green belt, Balcony, Crushed stone driveway, Country residential Rental Equipment: Directions: W Quarter Townline Rd. Hwy 2/53 West from Burford, turn right onto West Quarter Townline, second driveway on left into Twin Springs. Located on the corner of Fourth Concession Rd and W Quarter Townline Rd. Zoning Description: OS3-3 Interior Size: 858 sqft Community Features: Quiet Area Communication Type: High Speed Internet Access: Road access, Highway access, Highway Nearby Lot: under 1/2 acre Exterior Finish: Vinyl siding Water: Drilled Well, Septic System Heating / Cooling: Natural gas / Central air conditioning Age: Basement: None
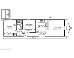
Rooms & Sizes
4pc Bathroom Main level 5 0 x 5 0
Living room Main level 15 3 x 14 4
Dining room Main level 8 7 x 6 0
Kitchen Main level 10 9 x 8 4
Bedroom Main level 11 10 x 8 2
Primary Bedroom Main level 10 11 x 12 0
Found a property your're looking for? Schedule a showing with our team. We're here to answer your questions and help you get a closer look.
John DiRenzo
Sales Representative RE/MAX Centre City John DiRenzo Team Brokerage
Direct Phone: (519) 857-3490
John DiRenzo, Salesperson. Cell: (519) 857-3490. RE/MAX Centre City John DiRenzo Team Brokerage.
Terms Of Use
This website is operated by RE/MAX Centre City John DiRenzo Team Brokerage, a brokerage who is a member of The Canadian Real Estate Association (CREA). The content on this website is owned or controlled by CREA. By accessing this website, the user agrees to be bound by these terms of use as amended from time to time, and agrees that these terms of use constitute a binding contract between the user, RE/MAX Centre City John DiRenzo Team Brokerage, and CREA.
The content on this website is protected by copyright and other laws, and is intended solely for the private, non-commercial use by individuals. Any other reproduction, distribution or use of the content, in whole or in part, is specifically prohibited. Prohibited uses include commercial use, "screen scraping", "database scraping", and any other activity intended to collect, store, reorganize or manipulate the content of this website.
Trademarks:
REALTOR®, REALTORS®, and the REALTOR® logo are certification marks that are owned by REALTOR® Canada Inc. and licensed exclusively to The Canadian Real Estate Association (CREA). These certification marks identify real estate professionals who are members of CREA and who must abide by CREA's By-Laws, Rules, and the REALTOR® Code. The MLS® trademark and the MLS® logo are owned by CREA and identify the professional real estate services provided by members of CREA. The data provided is for informational purposes only and should not be relied upon without verification.