Address: LOT 18 KOWTALUK WAY, Norfolk (Delhi) FOR SALE Postal Code: N4P2W5 Style: Detached Type: Single Family House Bedrooms: 4 Bathrooms: 4 Bedrooms Aboveground: 4 Bedrooms Belowground: 0 Parking: Attached Garage Garage: Attached Garage Lot Size: 50 ft x 119 ft ,4 in Property Size: 50 x 119.4 FT Stories: 2
About Lot 18 Kowtaluk Way
Nestled in a picturesque setting, this breathtaking to be built home spanning 2,640 square feet promises to be a true masterpiece. With an open-concept design that flows seamlessly from room to room, this home takes full advantage of its serene location, overlooking lush farmland and a tranquil row of evergreen trees along the back lot line. Imagine waking up every day to the peaceful sights and sounds of nature, with the added privacy and beauty that comes with such a scenic view. The heart of the home is the luxurious kitchen, featuring an expansive walk-in pantry. Whether you re hosting family gatherings or enjoying a quiet meal, this kitchen is sure to impress. The open-concept design effortlessly connects the kitchen to the perfect entertainment space, making it an ideal setting for socializing or relaxing. For those who work or need a quiet retreat, the separate front office/den provides a private and peaceful space. Upstairs, the master suite is a true sanctuary, offering a spa-like 5-piece ensuite and a walk-in closet complete with built-in organizers, offering both elegance and practicality. In addition to the master suite, you ll find three generously-sized bedrooms. One bedroom boasts its own ensuite, while the other two share a beautifully designed Jack and Jill bathroom ensuring both comfort and convenience for family or guests. This home is loaded with upgrades and thoughtful details, making it the perfect choice for those who seek luxury, space, and tranquility. If you ve been dreaming of a home that combines modern elegance with natural beauty, this could be the one. Price includes the new HST rebate and the home is to be built. (id:56071). Get more information on Lot 18 Kowtaluk Way
Property Features
Appliances: Water meter Features: Sump Pump Rental Equipment: Fireplace Total: 1 Directions: Cross Streets: Melody Dr. ** Directions: Big Creek Estates beside Melody Dr on Hawtrey Rd. Zoning Description: SFR Interior Size: 2500 - 3000 sqft Amenities: Fireplace(s) Lot: 50 x 119.4 FT|under 1/2 acre 50 x 119.4 FT Exterior Finish: Brick, Hardboard Water: Municipal water, Sanitary sewer Heating / Cooling: Natural gas / Central air conditioning Age: New building Foundation: Poured Concrete Basement: Full (Unfinished) Unfinished
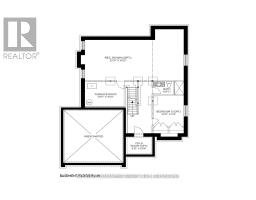
Rooms & Sizes
Found a property your're looking for? Schedule a showing with our team. We're here to answer your questions and help you get a closer look.
John DiRenzo
Sales Representative RE/MAX Centre City John DiRenzo Team Brokerage
Direct Phone: (519) 857-3490
Brokered by: Royal Lepage R.E. Wood Realty Brokerage
John DiRenzo, Salesperson. Cell: (519) 857-3490. RE/MAX Centre City John DiRenzo Team Brokerage.
Terms Of Use
This website is operated by RE/MAX Centre City John DiRenzo Team Brokerage, a brokerage who is a member of The Canadian Real Estate Association (CREA). The content on this website is owned or controlled by CREA. By accessing this website, the user agrees to be bound by these terms of use as amended from time to time, and agrees that these terms of use constitute a binding contract between the user, RE/MAX Centre City John DiRenzo Team Brokerage, and CREA.
The content on this website is protected by copyright and other laws, and is intended solely for the private, non-commercial use by individuals. Any other reproduction, distribution or use of the content, in whole or in part, is specifically prohibited. Prohibited uses include commercial use, "screen scraping", "database scraping", and any other activity intended to collect, store, reorganize or manipulate the content of this website.
Trademarks:
REALTOR®, REALTORS®, and the REALTOR® logo are certification marks that are owned by REALTOR® Canada Inc. and licensed exclusively to The Canadian Real Estate Association (CREA). These certification marks identify real estate professionals who are members of CREA and who must abide by CREA's By-Laws, Rules, and the REALTOR® Code. The MLS® trademark and the MLS® logo are owned by CREA and identify the professional real estate services provided by members of CREA. The data provided is for informational purposes only and should not be relied upon without verification.