Address: LOT 62 WOODLAND WALK, Southwold (Talbotville) FOR SALE Postal Code: N5P3T2 Style: Detached Type: Single Family House Bedrooms: 4 Bathrooms: 3 Bedrooms Aboveground: 4 Parking: Detached Garage Garage: Detached Garage Lot Size: 50 ft x 121 ft Property Size: 50 x 121 FT Stories: 2
About Lot 62 Woodland Walk
NEW INCENTIVE FOR THIS LOT ONLY* 20,000.00 DISCOUNT ( included in list price ) and Now with the Qualifying GST/HST rebate - the closing price is just $818,900 ( not including optional upgrades )- an incredible opportunity to own a brand new Vara Home at an exceptional value! TO BE BUILT | Vara Homes Waterbury Model - a rare chance to create the home you ve always envisioned. Brand new, fully customizable, and crafted with the quality and attention to detail Vara Homes is known for, this is your opportunity to design a space that truly reflects your style and needs. Offering nearly 2,300 sq. ft. of thoughtfully designed living space, this model features 4 spacious bedrooms, 3 bathrooms, and a versatile den-perfect as a home office, formal dining room, or cozy lounge. Because the home is yet to be built, you ll have the exciting ability to select your own finishes, from cabinetry and flooring to fixtures and countertops, bringing your dream home to life. Step into a bright, open-concept layout designed for both everyday living and effortless entertaining. The functional floor plan offers generous living spaces ideal for family gatherings and quiet nights in alike. Each bedroom is well-sized for comfort and privacy, while the primary suite serves as a luxurious retreat complete with a spa-inspired ensuite and walk-in closet. Situated in the growing community of Talbotville, this location offers the perfect balance of peaceful, small-town living with unbeatable convenience. You re just 10 minutes to Highway 401, London, and Port Stanley Beach, and only 3 minutes to the thriving city of St. Thomas. Additional lots are available, giving you even more flexibility to secure the perfect setting for your new home. Experience the craftsmanship, customization, and lifestyle that come with every Vara Homes build. (id:56071). Get more information on Lot 62 Woodland Walk
Property Features
Appliances: Garage door opener remote(s) Features: Sump Pump Rental Equipment: Water Heater Fireplace Total: 1 Directions: Cross Streets: WOODLAND WALK AND ROYAL CR. ** Directions: Highway 4 (Sunset Rd) right on Talbotville Gore Road, Right on Optimist Dr, Right on Woodland Walk. Interior Size: 2000 - 2500 sqft Community Features: Community Centre, School Bus Amenities: Fireplace(s) Lot: 50 x 121 FT 50 x 121 FT Exterior Finish: Hardboard, Stone Water: Municipal water, Sanitary sewer Heating / Cooling: Natural gas / Central air conditioning Age: Foundation: Poured Concrete Basement: Full (Unfinished) Unfinished
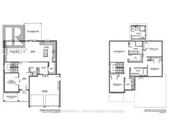
Rooms & Sizes
Bedroom Second level 3.29 m x 3.05 m
Laundry room Second level 2.16 m x 1.77 m
Primary Bedroom Second level 4.45 m x 3.96 m
Bedroom Second level 3.39 m x 3.26 m
Bedroom Second level 3.41 m x 3.05 m
Foyer Main level 2.13 m x 1.64 m
Office Main level 3.69 m x 2.9 m
Mud room Main level 2.52 m x 2.28 m
Pantry Main level 2.52 m x 1.52 m
Dining room Main level 4.26 m x 3.05 m
Kitchen Main level 4.26 m x 3.41 m
Living room Main level 4.48 m x 4.26 m
Found a property your're looking for? Schedule a showing with our team. We're here to answer your questions and help you get a closer look.
John DiRenzo
Sales Representative RE/MAX Centre City John DiRenzo Team Brokerage
Direct Phone: (519) 857-3490
John DiRenzo, Salesperson. Cell: (519) 857-3490. RE/MAX Centre City John DiRenzo Team Brokerage.
Terms Of Use
This website is operated by RE/MAX Centre City John DiRenzo Team Brokerage, a brokerage who is a member of The Canadian Real Estate Association (CREA). The content on this website is owned or controlled by CREA. By accessing this website, the user agrees to be bound by these terms of use as amended from time to time, and agrees that these terms of use constitute a binding contract between the user, RE/MAX Centre City John DiRenzo Team Brokerage, and CREA.
The content on this website is protected by copyright and other laws, and is intended solely for the private, non-commercial use by individuals. Any other reproduction, distribution or use of the content, in whole or in part, is specifically prohibited. Prohibited uses include commercial use, "screen scraping", "database scraping", and any other activity intended to collect, store, reorganize or manipulate the content of this website.
Trademarks:
REALTOR®, REALTORS®, and the REALTOR® logo are certification marks that are owned by REALTOR® Canada Inc. and licensed exclusively to The Canadian Real Estate Association (CREA). These certification marks identify real estate professionals who are members of CREA and who must abide by CREA's By-Laws, Rules, and the REALTOR® Code. The MLS® trademark and the MLS® logo are owned by CREA and identify the professional real estate services provided by members of CREA. The data provided is for informational purposes only and should not be relied upon without verification.