Brokered by: SUTTON GROUP PAWLOWSKI & COMPANY REAL ESTATE BROKERAGE INC.
MLS®: X12849572 (Freehold)
Price: $1,232,650.00
Address: LOT No.44 - 111 TIMBERWALK TRAIL, Middlesex Centre (Ilderton) FOR SALE Postal Code: N0M2A0 Style: Detached Type: Single Family House Bedrooms: 4 Bathrooms: 3 Bedrooms Aboveground: 4 Bedrooms Belowground: 0 Parking: Attached Garage Garage: Attached Garage Lot Size: 52 ft x 115 ft Property Size: 52 x 115 FT Stories: 2
About Lot No.44 - 111 Timberwalk Trail
Huge builder incentive alert!! For a limited time, Melchers Developments is offering up to $100,000 off select homes in Timberwalk, Ilderton on firm deals only. Welcome to Timberwalk in Ilderton - Love Where You Live! TO BE BUILT by Melchers Developments Inc., a trusted, family-run builder celebrated for craftsmanship, timeless design, and a legacy of building in London and surrounding communities since 1987. Timberwalk offers the perfect balance of small-town charm and modern convenience-just minutes north of London. Choose from a stunning collection of custom-designed homes showcasing exceptional attention to detail, open-concept layouts, and premium finishes throughout. Each floor plan is thoughtfully designed with today s families in mind, featuring bright, functional living spaces, generous kitchens with quartz countertops, custom cabinetry, and large islands overlooking spacious great rooms-ideal for entertaining or relaxing. Personalize your home with Melchers in-house design team to create a space that reflects your lifestyle. Nestled in the heart of Ilderton, Timberwalk offers a peaceful, family-friendly atmosphere surrounded by parks, walking trails, and green space. Enjoy the relaxed pace of small-town living without sacrificing proximity to schools, shopping, golf courses, and all the amenities of London just a short drive away. Discover why families have trusted Melchers Developments Inc. for generations. Register now for builder incentives and reserve today before 2026 price increases.Visit our model homes at 110 Timberwalk Trail in Ilderton and 44 Benner Blvd in Kilworth Heights West, open most Saturdays and Sundays 2-4 p.m. Note: Photos are from a model home and may show upgrades not included in the prices and are for reference only. (id:56071). Get more information on Lot No.44 - 111 Timberwalk Trail
Property Features
Appliances: Garage door opener remote(s) Features: Sump Pump Rental Equipment: Water Heater Fireplace Total: 1 Directions: Cross Streets: Songbird Lane. ** Directions: . Zoning Description: UR1-25 Interior Size: 2500 - 3000 sqft Community Features: Community Centre, School Bus Amenities: Fireplace(s) Lot: 52 x 115 FT 52 x 115 FT Exterior Finish: Wood, Brick Flooring: Hardwood Water: Municipal water, Sanitary sewer Heating / Cooling: Natural gas / Central air conditioning Age: New building Foundation: Poured Concrete Basement: N/A (Unfinished), N/A Unfinished
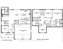
Rooms & Sizes
Bedroom 3 Second level 3.69 m x 3.66 m
Laundry room Second level Measurements not available
Primary Bedroom Second level 4.27 m x 4.42 m
Bedroom Second level 3.93 m x 3.35 m
Bedroom 2 Second level 3.41 m x 3.69 m
Foyer Main level 1.83 m x 2.44 m
Study Main level 3.02 m x 3.11 m
Great room Main level 4.88 m x 4.88 m
Kitchen Main level 4.27 m x 4.42 m
Pantry Main level 2.44 m x 1.83 m
Dining room Main level 4.27 m x 3.66 m
Mud room Main level 2.74 m x 2.14 m
Found a property your're looking for? Schedule a showing with our team. We're here to answer your questions and help you get a closer look.
John DiRenzo
Sales Representative RE/MAX Centre City John DiRenzo Team Brokerage
Direct Phone: (519) 857-3490
Brokered by: SUTTON GROUP PAWLOWSKI & COMPANY REAL ESTATE BROKERAGE INC.
John DiRenzo, Salesperson. Cell: (519) 857-3490. RE/MAX Centre City John DiRenzo Team Brokerage.
Terms Of Use
This website is operated by RE/MAX Centre City John DiRenzo Team Brokerage, a brokerage who is a member of The Canadian Real Estate Association (CREA). The content on this website is owned or controlled by CREA. By accessing this website, the user agrees to be bound by these terms of use as amended from time to time, and agrees that these terms of use constitute a binding contract between the user, RE/MAX Centre City John DiRenzo Team Brokerage, and CREA.
The content on this website is protected by copyright and other laws, and is intended solely for the private, non-commercial use by individuals. Any other reproduction, distribution or use of the content, in whole or in part, is specifically prohibited. Prohibited uses include commercial use, "screen scraping", "database scraping", and any other activity intended to collect, store, reorganize or manipulate the content of this website.
Trademarks:
REALTOR®, REALTORS®, and the REALTOR® logo are certification marks that are owned by REALTOR® Canada Inc. and licensed exclusively to The Canadian Real Estate Association (CREA). These certification marks identify real estate professionals who are members of CREA and who must abide by CREA's By-Laws, Rules, and the REALTOR® Code. The MLS® trademark and the MLS® logo are owned by CREA and identify the professional real estate services provided by members of CREA. The data provided is for informational purposes only and should not be relied upon without verification.