Address: 162 IRONWOOD TRAIL, Chatham FOR SALE Postal Code: N7M0T3 Style: Detached Bungalow, Ranch Type: Single Family House Bedrooms: 2 Bathrooms: 2 Bedrooms Aboveground: 2 Bedrooms Belowground: 0 Parking: Garage Garage: Garage Lot Size: x Property Size: 36.02 X 125 / 0.103 AC Stories: 1
About 162 Ironwood Trail
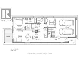
Now Ready for Showings! A concrete driveway, fully fenced yard, and front and rear sod will be completed and are all included in the purchase price. Welcome to The Linden by Maple City Homes Ltd.—a stylish, energy-efficient bungalow offering nearly 1,300 sq. ft. of one-level living with a spacious double-car garage. Designed with comfort and convenience in mind, this home is perfect for retirees or anyone seeking a stair-free lifestyle. The open-concept layout features a modern kitchen with quartz countertops that seamlessly flows into the dining area and bright, airy living room. Patio doors lead to a covered rear deck, ideal for outdoor relaxation or entertaining. The primary bedroom boasts a walk-in closet and a private ensuite, while main floor laundry adds everyday ease. Built with quality finishes and an Energy Star Rating for long-term efficiency and savings. HST is included in the purchase price, net of rebates assigned to the builder. All deposits are to be made payable to Maple City Homes Ltd. (id:56071). Get more information on 162 Ironwood Trail
Property Features
Features: Concrete Driveway Rental Equipment: Zoning Description: RL5-1460 Interior Size: 1295 sqft Lot: 36.02 X 125 / 0.103 AC|under 1/4 acre 36.02 X 125 / 0.103 AC Exterior Finish: Aluminum/Vinyl, Brick Flooring: Laminate Water: , Heating / Cooling: Natural gas / Central air conditioning, Fully air conditioned Age: 2025 Foundation: Concrete Finished Area: 1295 sqft Constructed Date: 2025 Basement:
Rooms & Sizes
Bedroom Main level 10 ft x 9 ft ,2 in
4pc Bathroom Main level Measurements not available
Laundry room Main level 7 ft ,5 in x 5 ft ,6 in
3pc Ensuite bath Main level Measurements not available
Primary Bedroom Main level 12 ft ,6 in x 12 ft ,4 in
Living room Main level 9 ft ,10 in x 12 ft ,2 in
Kitchen Main level 12 ft x 12 ft ,2 in
Dining room Main level 10 ft x 12 ft ,2 in
Foyer Main level 24 ft x 5 ft
Found a property your're looking for? Schedule a showing with our team. We're here to answer your questions and help you get a closer look.
John DiRenzo
Sales Representative RE/MAX Centre City John DiRenzo Team Brokerage
Direct Phone: (519) 857-3490
John DiRenzo, Salesperson. Cell: (519) 857-3490. RE/MAX Centre City John DiRenzo Team Brokerage.
Terms Of Use
This website is operated by RE/MAX Centre City John DiRenzo Team Brokerage, a brokerage who is a member of The Canadian Real Estate Association (CREA). The content on this website is owned or controlled by CREA. By accessing this website, the user agrees to be bound by these terms of use as amended from time to time, and agrees that these terms of use constitute a binding contract between the user, RE/MAX Centre City John DiRenzo Team Brokerage, and CREA.
The content on this website is protected by copyright and other laws, and is intended solely for the private, non-commercial use by individuals. Any other reproduction, distribution or use of the content, in whole or in part, is specifically prohibited. Prohibited uses include commercial use, "screen scraping", "database scraping", and any other activity intended to collect, store, reorganize or manipulate the content of this website.
Trademarks:
REALTOR®, REALTORS®, and the REALTOR® logo are certification marks that are owned by REALTOR® Canada Inc. and licensed exclusively to The Canadian Real Estate Association (CREA). These certification marks identify real estate professionals who are members of CREA and who must abide by CREA's By-Laws, Rules, and the REALTOR® Code. The MLS® trademark and the MLS® logo are owned by CREA and identify the professional real estate services provided by members of CREA. The data provided is for informational purposes only and should not be relied upon without verification.