Address: 216 IRONWOOD TRAIL, Chatham FOR SALE Postal Code: N7M0T3 Style: Detached Bungalow, Ranch Type: Single Family House Bedrooms: 3 Bathrooms: 2 Bedrooms Aboveground: 3 Bedrooms Belowground: 0 Parking: Garage Garage: Garage Lot Size: x Property Size: 35 X 125 / 0.1 AC Stories: 1
About 216 Ironwood Trail
Welcome to ""The Birch"" built by Maple City Homes Ltd. Offering approximately 1397 square feet of living space, this new construction home provides an open concept layout that offers both indoor and outdoor spaces for you to enjoy with front and rear covered porches. The kitchen includes quartz countertops, that flows into the dining space and living room giving an open concept design. Patio doors off the dining room, leading to a covered deck. Retreat to your primary bedroom, which includes a walk-in-closet and an ensuite. Price includes a concrete driveway, fenced in yard, sod in the front yard & in the backyard. With an Energy Star Rating to durable finishes, every element has been chosen to ensure your comfort & satisfaction for years to come. Price inclusive of HST, net of rebates assigned to the builder. All Deposits payable to Maple City Homes Ltd. (id:56071). Get more information on 216 Ironwood Trail
Property Features
Features: Double width or more driveway, Concrete Driveway Rental Equipment: Zoning Description: RES Interior Size: 1397 sqft Lot: 35 X 125 / 0.1 AC|under 1/4 acre 35 X 125 / 0.1 AC Exterior Finish: Aluminum/Vinyl, Stone Flooring: Carpeted, Cushion/Lino/Vinyl Water: , Heating / Cooling: Natural gas / Central air conditioning, Fully air conditioned Age: 2025 Foundation: Concrete Finished Area: 1397 sqft Constructed Date: 2025 Basement:
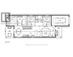
Rooms & Sizes
Dining room Main level 10 ft x Measurements not available
4pc Bathroom Main level 8 ft x 3 ft ,8 in
Bedroom Main level 10 ft x 9 ft ,8 in
Bedroom Main level 10 ft x 9 ft ,6 in
3pc Ensuite bath Main level 12 ft x 5 ft
Primary Bedroom Main level 12 ft ,6 in x 12 ft
Foyer Main level 4 ft x 13 ft ,6 in
Living room Main level 16 ft ,10 in x Measurements not available
Kitchen Main level 17 ft ,4 in x 12 ft ,10 in
Found a property your're looking for? Schedule a showing with our team. We're here to answer your questions and help you get a closer look.
John DiRenzo
Sales Representative RE/MAX Centre City John DiRenzo Team Brokerage
Direct Phone: (519) 857-3490
John DiRenzo, Salesperson. Cell: (519) 857-3490. RE/MAX Centre City John DiRenzo Team Brokerage.
Terms Of Use
This website is operated by RE/MAX Centre City John DiRenzo Team Brokerage, a brokerage who is a member of The Canadian Real Estate Association (CREA). The content on this website is owned or controlled by CREA. By accessing this website, the user agrees to be bound by these terms of use as amended from time to time, and agrees that these terms of use constitute a binding contract between the user, RE/MAX Centre City John DiRenzo Team Brokerage, and CREA.
The content on this website is protected by copyright and other laws, and is intended solely for the private, non-commercial use by individuals. Any other reproduction, distribution or use of the content, in whole or in part, is specifically prohibited. Prohibited uses include commercial use, "screen scraping", "database scraping", and any other activity intended to collect, store, reorganize or manipulate the content of this website.
Trademarks:
REALTOR®, REALTORS®, and the REALTOR® logo are certification marks that are owned by REALTOR® Canada Inc. and licensed exclusively to The Canadian Real Estate Association (CREA). These certification marks identify real estate professionals who are members of CREA and who must abide by CREA's By-Laws, Rules, and the REALTOR® Code. The MLS® trademark and the MLS® logo are owned by CREA and identify the professional real estate services provided by members of CREA. The data provided is for informational purposes only and should not be relied upon without verification.